Verwaltungsgebäude Krankenhaus Dornbirn
Dornbirn, Austria
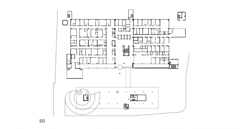
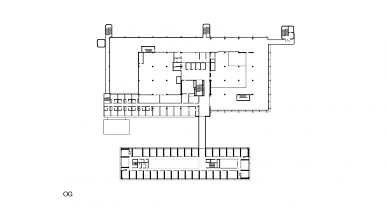
Die Dornbirner Westeinfahrt trifft beim Krankenhaus auf die zentrale Stadtstrasse: das Spital ist ein Signalbau, abgerückt von der Lustenauer Straße stehend. Das Vorfeld wird nun für den Zubau eines Verwaltungstrakts genutzt. Der in Stahl konstruierte, mit Stahlbetonkernen ausgesteifte, hoch aufgeständerte Riegel steht parallel zum Haupthaus. Der Stützenraster der Tiefgarage wird übernommen. Die Büros gruppieren sich um eine zweigeschossige Halle. Die Glas-Metall-Fassade weist einen außen liegenden Sonnenschutz auf. Der Bestand wird umstrukturiert und in Weiterführung des Sockelgeschosses eine Intensivstation, Bereitschaftszimmer und die Ambulante Bettenstation ergänzt.
- Architects
- Gohm Hiessberger Architekten
- Year
- 2004
- Client
- Stadt Dornbirn
- Kunst am Bau
- K.H. Ströhle


















