Hovering Cabin
Chino-city, Nagano, Japan
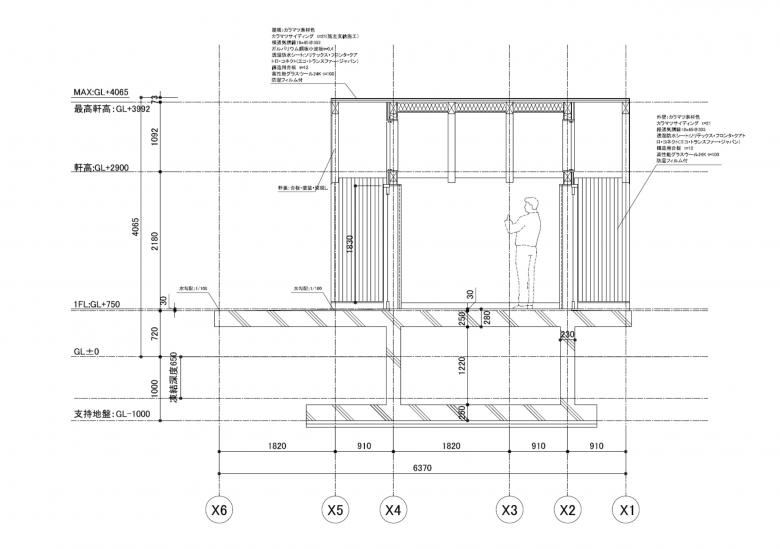
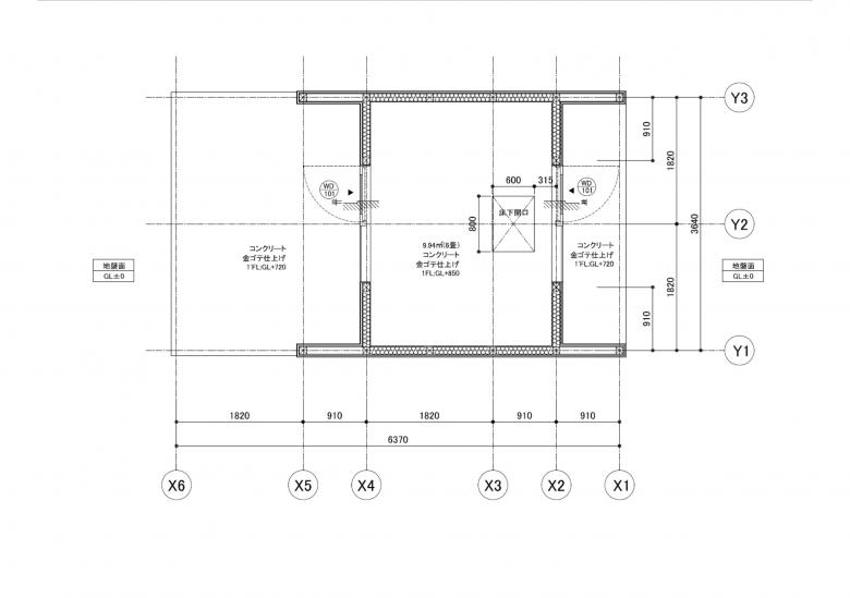
This "Hovering Cabin" is located at an altitude of 1100 meters in Nagano Prefecture, Japan. The site of "Hovering Cabin" is the garden of "Pettanco House 2", which was completed in 2018. The client is also a landscape designer, and the building is used as a "small local community center and his office". He also dreams of expanding it further and moving out of "Pettanco House 2" in the future. The small wooden space of about 10 m2 is raised on a foundation like a single leg, and is cut off from the land on all four sides. The new relationship between the landscape and the building that is born from cutting the edge is important. In addition, the compact foundation directly leads to cost reduction in this area where the freezing depth is deep. The roof and exterior wall materials are siding materials made of local Japanese larch, which were also used in "Pettanco House 2". The roof base is galvalume corrugated sheet, and the exterior wall base is a highly durable waterproof sheet made in Germany. The roof and exterior wall were carefully constructed by the client himself. This is a completely off-grid building with no plumbing and no electricity connections.
- Architects
- Yuji Tanabe Architects
- Year
- 2024
- Structural engineer
- Low Fat Structure
- Landscape design
- hondaGREEN
- Builder
- Ushiyama-komuten
Related Projects
Magazine
-
-
Building of the Week
A Loop for the Arts: The Xiao Feng Art Museum in Hangzhou
Eduard Kögel, ZAO / Zhang Ke Architecture Office | 15.12.2025 -
















