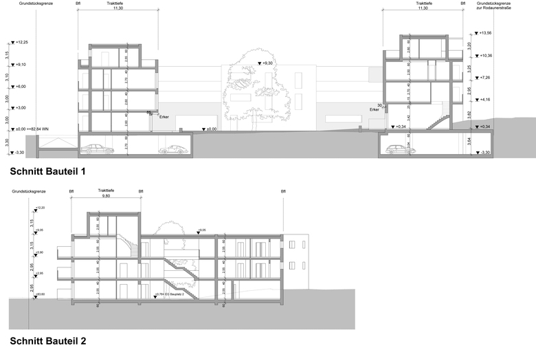
Multi-story Wooden Residential Building, Vienna 1230
One of the few multi-story wooden residential buildings to be built in Vienna was designed by P.GOOD architects. The project, on the theme “GenerationenWohnenRodaun”, was completed at the end of June 2013. The design made it possible to orient all the apartments in the direction of the east-west green space. The apartments are accessed via a gallery, which effectively protects them from the noise of the street. The goal was to meet all the needs of sustainable building and living in the city – in social, environmental and economic terms.
Starting Points
1) Use of wood as primary building material
2) Location of the construction site at the intersection of two busy roads with high CO2 emissions
3) Existing green space with distinctive topography and a beautiful stock of trees
4) Urban structure of the area - a mix of council housing estates and single-family homes
Social Sustainability
1) Integration of different generations and lifestyles
2) Accommodation of important functions that were housed in the former council estate, such as the seniors' club
3) Flexibility of floor plans
Concept of Supporting Structure
1) Wall system in laminated wood planks and wood frame construction
2) Ceiling system in laminated wood planks
3) Structural bracing in combination with the mineral stairwell cores
4) Basement in mineral construction
- Residential
- Apartment Buildings
- Mixed Use
- Educational
- Parking Structures
- Day Care + Kindergartens
- Transportation
- Year
- 2013
- Project Status
- Built







