Seven Hotel
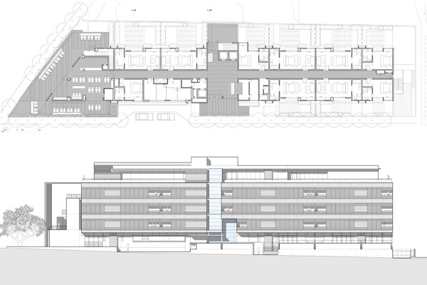
Seven Hotel is a 54 room business hotel on a narrow urban lot at the corner of a busy thoroughfare and a service road. The building addresses this corner condition with a series of stepped terraces. The long facades of the building face east and west and are protected by sliding timber screens. There is a patisserie at the ground floor which opens out to the street and a full service restaurant on the roof.
- Year
- 2008
- Project Status
- Built








