Wielandschule

Weimar, Germany
Photo © M. Mitzow

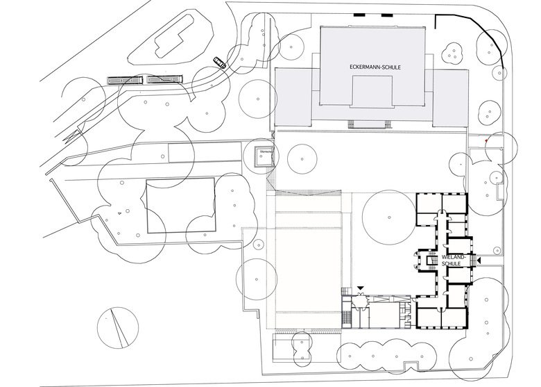
Städtebau – Das Ensemble der beiden Schulen stellt zusammen mit den Freiflächen und dem beachtlichen Baumbestand eine Substanz vonaußergewöhnlicher Qualität dar. Aus diesem Grund wurde als Ergänzung der Schule einen kompakten Baukörper vorgeschlagen, der sich in Volumen, Stellung und Erscheinung zurückhaltend gibt. Alle Neubauten antworten auf die Bestandsgebäude mit zurückhaltender Eleganz. Ruhige, mineralisch eingefärbte Flächen und Fensteröffnungen, die auf Proportion und Gliederung des Altbaus reagieren, bestimmen ihre äußere Erscheinung. Schule und Sporthalle fügen sich wie selbstverständlich ein, sprechen aber eine eigene, zeitgemäße Architektursprache. Das größte Neubauvolumen - die Turnhalle - wird zugunsten des Grundstücks im Gelände versteckt angeordnet. Dennoch ist sie wesentlicher Bestandteil der neuen Gebäudekomposition, da alle Baukörper in ein subtiles geometrisches Beziehungsnetz zueinander gesetzt werden. Es entsteht eine spannungsreiche Zonierung der Freiflächen und eine die Topografie unterstützende Terrassierung des Geländes.

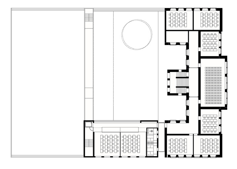
Organisation/Struktur Schule – Das Organisationsprinzip des Erweiterungsbaus ist denkbar einfach gehalten. In Fortsetzung des vorhandenen Flurs werden niveaugleich als direkte Erweiterung jeweils zwei Klassenzimmer und die für ein Geschoss erforderlichen WC-Anlagen angeordnet. Hierdurch ist für die Belegung größtmögliche Flexibilität gegeben. Das am ende des Ergänzungsbaus liegende notwendige Treppenhaus ist ein zusätzlicher baulicher Rettungsweg für den Bestand. Im Erdgeschoss des Neubaus werden - über den Schulhof direkt von außen zugänglich - der Speisesaal und die Turnhalle erschlossen. Neben den WC-Anlagen befinden sich im EG auch zwei kleine Räume (Horterzieher und Bibliothek), die bisher im Altbau lagen, aber wegen der Verlängerung des Flures verlegt werden mussten.

Organisation/Struktur Turnhalle – Der Baukörper der Sporthalle besteht aus einer 2-Feld-Halle (44-22) und aus auf zwei Ebenen angeordneten Nebenräumen. Während die geräte- und technikflächen auf Sporthallenniveau liegen, befinden sich alle Umkleiden auf einer Galerie, von der aus man einen schönen Einblick in die Halle hat. Die für eine Sporthalle und vor allem für die Umkleiden unserer Meinung nach unabdingbar erforderliche natürliche Belüftung und Belichtung wird bei der vorgeschlagenen eingegrabenen Lösung durch einen „Trick“ erreicht: Eine Fuge wird von oben so in das Volumen geschnitten, dass sowohl nach einer Seite die Sporthalle Licht bekommt (Oberlichtband 1,70x44m) wie auch die angrenzenden Umklieden und Duschen (Oberlichtband 1,70x44m). An der zweiten Hallenlängsseite hier ist das angrenzende Gelände leicht abgetreppt, so dass sich hier ebenso ein Oberlichtband befindet.

Außenanlagen – Das Schulgründstück ist Bestandteil des gesamtstädtischen Grünraums Lotte-Kirschbachtal. Dieser grünraum soll weder optisch durch zusätzliche große Volumen, noch in seiner Funktion als Frischluftschneise beeinträchtigt werden. Unter Berücksichtigung der Topografie werden die Nutzungsbereiche Pausen-, Sport-, und Spielfläche als terrassierte Ebenen ausgebildet. Das Dach der Turnhalle wird als bespielbarer Freiraum in dieses Konzept miteinbezogen. Die Vorgartenbereiche und die westliche Grundstückshälfte, die im wesentlichen den Baumbestand aufweisen, werden nicht überplant, sondern mit wenigen Eingriffen in ihrer Struktur gestärkt: Neupflanzungen, Stützmauern (Gabionen), Wege und Flächen mit unterschiedlichem Belag unterstreichen den parkähnlichen Charakter. Die Sportflächen und die Stellplätze werden behutsam zwischen den Bäumen angeordnet. Bei der Ergänzung der vegetativen Elemente wird das ursprüngliche Grünkonzept mit Pflanzen zur Lehrstoffvermittlung im Freiraum weiterverfolgt.

Photo © M. Mitzow
Photo © M. Mitzow
© M. Mitzow
Photo © M. Mitzow
Photo © M. Mitzow
Photo © M. Mitzow
Lageplan
Drawing © Ferdinand Heide Architekt
Grundriss
Drawing © Ferdinand Heide Architekt
Schnitt
Drawing © Ferdinand Heide Architekt
Year
2010
Client
Stadt Weimar, Hochbauamt
Wettbewerb
1.Preis
Mitarbeit
Gabriele Hofmann, Martin Gotsmann, Carsten Sälzer, Heinrich Großenbach, Petra Brand
Leistung
HOAI LP. 1-8

Other Projects by HEIDE 

Messehalle Offenburg
Offenburg, Germany
Studentenwohnheim Ginnheim
Frankfurt am Main, Germany
Neubau Rhein-Main-Hallen
Wiesbaden, Germany
Hörsaal- und Institutsgebäude
Regensburg, Germany
Hörsaal- und Medienzentrum
Darmstadt, Germany