Workation Villa Karuizawa
Inspiring shared Work-cation Villa to bring you new ideas
[credits]
architect: Ken Hashimoto/EPS
[data]
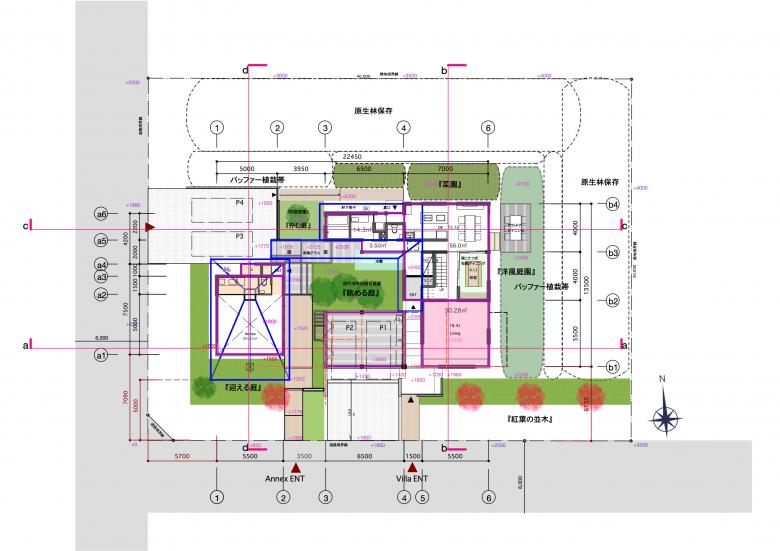
location: Nagano, Japan
project: April 2022
completion: July 2022
land use: Category 1 low-rise exclusive residential district
building use: dwelling
site area : 1200.00㎡
building area : 200.55㎡
net floor area : 232.08㎡
building coverage : 16.71% to 20%
ratio of building volume to lot : 19.34% to 20%
number of stories : 3
- Year
- 2022



