Citywohnpark Duisburg

Musfeldstraße 58-70; Heerstraße 37-47, Duisburg, Germany
Visualization © Filippo Fanciotti

1. Preis Wettbewerb Citywohnpark Duisburg

Der Citywohnpark - ein vier- bis achtgeschossiger Bau aus den 70er Jahren in Duisburg Hochfeld - ist zwar „in die Jahre“ gekommen, aber das architektonische Konzept weist etliche Qualitäten auf, die zeitlos sind und die wir mit unserem Entwurf jetzt wieder würdigen und hervorheben. Der außerordentlich prägnante Baumbestand hat dem gesamten Gebäudeensemble im Laufe der Jahre seinen Park Charakter gegeben. Ziel ist es, diese Qualität hervorzuheben und sichtbar zu machen. Eine Bewohner-nahe Grün- und Freiraumgestaltung soll die nachbarschaftlichen Beziehungen fördern und stärken und dabei die Wünsche der Bewohner umsetzen. Nachhaltigkeit bei der Umsetzung aller Maßnahmen ist uns ein großes Anliegen. Deshalb wollen wir keine Eingriffe vornehmen wo sie nur eine geringe Verbesserung bewirken.
Ein neues Gesicht erhalten die Eingangsbereiche: Barrierearm gestaltet, vergrößert und begrünt; So entstehen aus Eingängen Adressen und aus Hausnummern werden Namensschilder. Die Treppenhäuser und Aufzüge renoviert, ein Quartiersplatz mit Quartiers-Café, Sportflächen und Spiellandschaften und vor allem die neue Fassadengestaltung werden den Citywohnpark aufleben lassen. Das Farbkonzept nimmt die Farbigkeit der Grünanlagen auf und antwortet auf die Frage des Citywohnparks mit „Wohnen im Park!“
Wir sind sehr froh und stolz als Sieger aus dem Wettbewerb der GEBAG um die energetische Sanierung und gestalterisch-funktionale Aufwertung der Wohnanlage hervorzugehen und dabei Duisburgs Stadtbild einmal mehr mit unseren Ideen zu prägen.
In Zusammenarbeit mit Filippo Fanciotti und wbp Landschaftsplaner, Bochum.

Visualization © Filippo Fanciotti
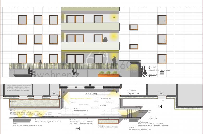
Drawing © wbp Landschaftsarchitektur
Year
2019
Project Status
Design
Client
GEBAG Duisburger Baugesellschaft mbH

Other Projects by Druschke Architektur 

Kita Löwenzahn, Kamp-Lintfort
Kamp-Lintfort, Germany
Königsberger Allee
Duisburg, Germany
Athener Ring
Köln-Chorweiler, Germany
Bürogebäude Mülheimer Straße
Duisburg, Germany
Friederike-Fliedner-Haus
Kamp-Lintfort, Germany