Wohnbebauung Ennenstraße
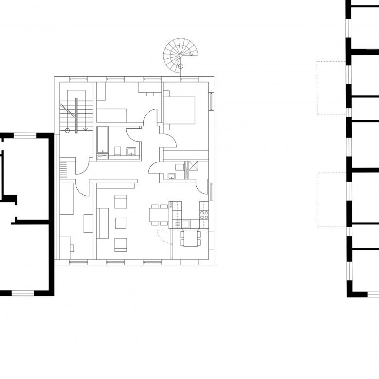
Das viergeschossige Wohnhaus an der Ennenstraße in Köln-Neuehrenfeld ersetzt einen ungenutzten, eingeschossigen Gewerbebau in reiner Wohnlage. Er bietet Raum für vier Wohnungen – drei Einheiten mit 4 Zimmern und eine Erdgeschosswohnung mit 3 Zimmern. Das Haus reagiert auf das denkmalgeschützte Ensemble der Ennenstraße aus den 1930er Jahren – ein Straßenzug mit genossenschaftlichem Wohnungsbau, gruppiert um einen kleinen Platz mit Brunnenanlage. Der Baukörper bildet den Schlussstein der historischen Häuserzeile und reagiert sowohl durch das kubische Volumen und die monochrome Farbigkeit, als auch durch einen zwei Meter tiefen Rücksprung aus der Straßenfront auf den Denkmalschutz. Der Neubau bildet damit eine städtebaulich eigenständige und selbstbewusste Haltung aus. Im Gegensatz zur modernen Baukörpergestalt greift die Detailausbildung den denkmalgeschützten Bestand bewusst zitierend wieder auf. Sowohl die Fensterformate und die Ausbildung von Fensterfaschen, als auch der Besenstrichputz bilden historische Bezüge. Auch der private Freisitz nach Süden wird durch Ausbildung einer Loggia im Fensterformat ein Teil der Bestandsstruktur und ordnet sich dem Straßenbild unter. Wegen des großzügigen Innenhofs der genossenschaftlichen Wohnanlage konnte eine Wasser-Wasser-Wärmepumpe mit hohem Wirkungsgrad alleine für die Wärmeerzeugung eingesetzt werden. In Verbindung mit einer Solaranlage im Mieterstrommodel für eine dezentrale Warmwassererzeugung mit Durchlauferhitzern direkt an der Entnahmestelle war es darüber hinaus möglich, das erste komplett CO2-neutrale Wohngebäude für die gemeinnützige Wohnungsgenossenschaft zu errichten.
- Year
- 2020
- Project Status
- Built
- Client
- DIE EHRENFELDER Gemeinnützige Wohnungsgenossenschaft eG
- Team
- Sebastian Bauer, Serena Maddalo, Willi Wagner
- Tragwerk
- bau|werk ingenieure, Köln
- Landschaft
- Studio Grijsbach, Bergisch Gladbach
- TGA
- Ingenieurbüro Jüngling









