Savings and Loan Bank Allgäu Kempten

Kempten, Germany
© Roland Halbe

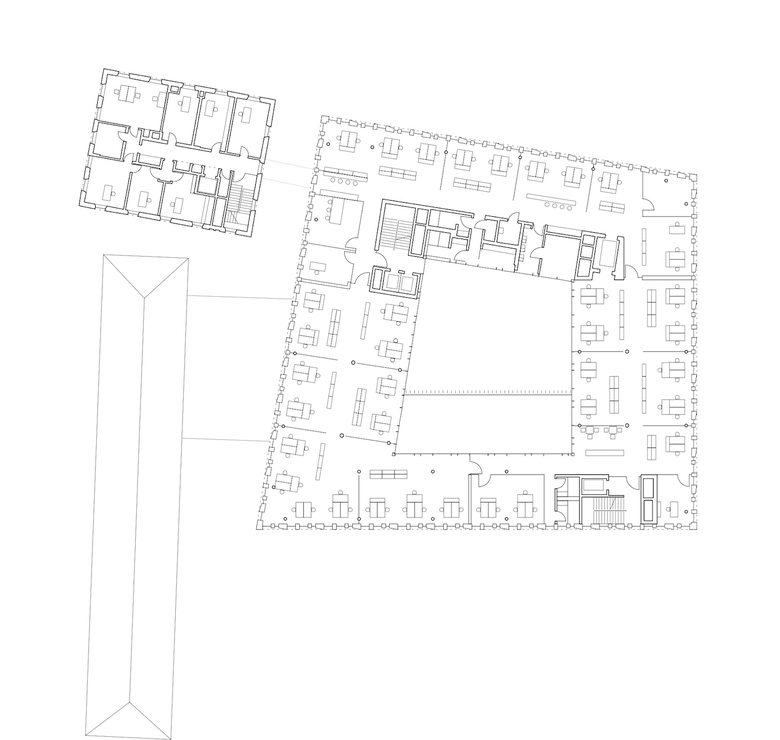
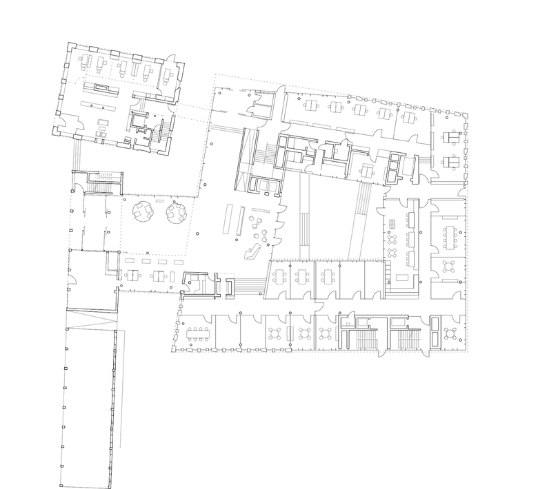
On Residenzplatz square in Kempten, continuing the neighboring historic building "Lange Stände", the Sparkasse bank are completing their new headquarter. The sensitive transition towards Stadtgarten park and the integration of part of the Weidlehaus, another historic house, require a most precise insertion of the building. Around an inner yard, a compact administration building is growing, facing Residenzplatz with four stories and Stadtgarten with five. The first floor will hold the new customer hall. Story-high façade elements, of different widths and arranged at differing angles, and made of architectural concrete, endow the new headquarter with appropriate proportions as well as an autonomous position within the historic context.

Client
Sparkasse Allgäu, Kempten

Gross
8.800 sqm

© Roland Halbe
© Roland Halbe
© Roland Halbe
Year
2017

Other Projects by Auer Weber 

University Centre Lyon
Lyon, France
Renovation and Extension Inselhalle Lindau
Lindau, Germany
Mezzanine Level Central Station Munich
Munich, Germany
Organ facade of the Constantine Basilica
Trier, Germany
Justice Centre
Fribourg, Germany