Freiburg (D): Quartier Zinklern (1. Preis)

Wettbewerb 2013, Rahmenplan 2015
Drawing © Ammann Albers StadtWerke

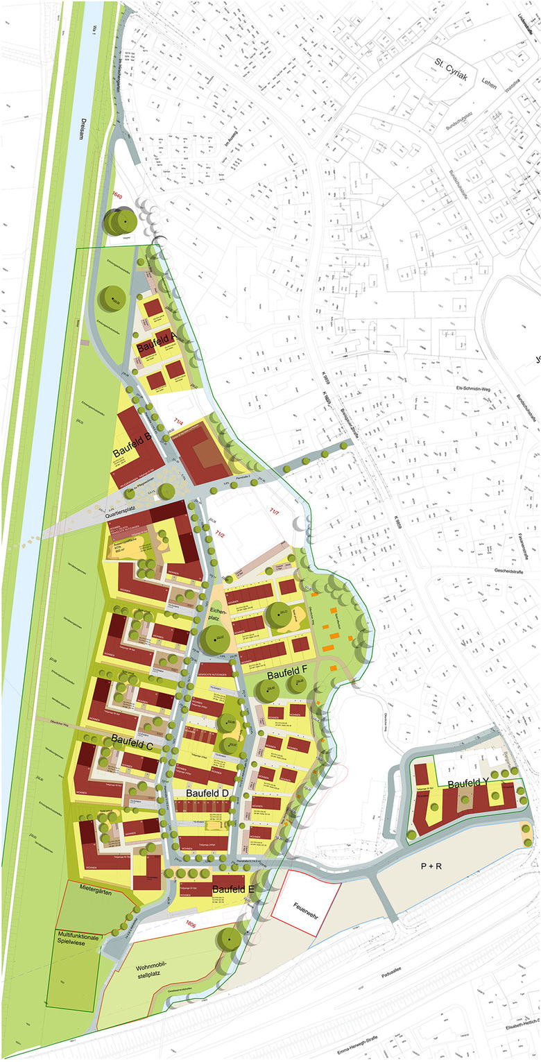
Städtebaulicher Entwurf für das ca. 18 ha grosse Wettbewerbsgebiet, welches die alte Dorfstruktur des historischen Orts Lehen ergänzen soll.
Mehrfachbeauftragung, Städtebaulicher Wettbewerb.

1. Rang, Weiterbearbeitung Vertiefung des städtebaulichen Entwurfs

Drawing © Ammann Albers StadtWerke
Drawing © Ammann Albers StadtWerke
Photo © Ammann Albers StadtWerke
Photo © Ammann Albers StadtWerke
Year
2018
Client
Stadt Freiburg i. Br.
Team
Böwer Eith Murken Architekten, Almut Henne Christian Korn Landschaftsarchitekten, Ernst + Co Beratende Ingenieure, Emil Galli Soziologie

Other Projects by Ammann Albers StadtWerke 

Augsburg (D): Haunstetten (Preisgruppe)
Städtbaulicher Wettbewerb
Cham (CH): Leitbild Städtebau und Architektur
Auftrag nach Präqualifikation, Switzerland
Hochfelden (CH), Dorfmitte: Zentrum (1. Preis)
Studienauftrag, Switzerland
München (D), Baumkirchen (1.Preis)
Wettbewerb
Möhlin (CH): BATA-Park Verdichtung (1. Rang)
Testplanung, Switzerland