Vista House
An art loving couple was able to purchase an outstanding scenic property in the north of Stuttgart with spectacular views over the city. The property is reached via a southern access road situated below.
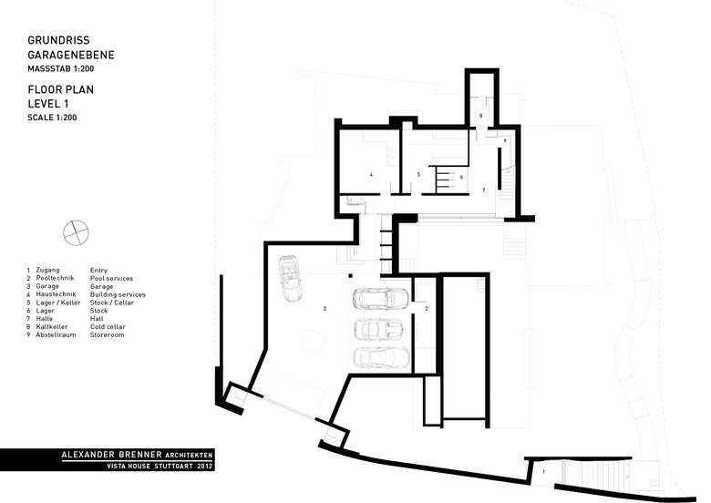
While the garage, situated below the garden, is visible only through a woodclad incision in the existing sandstone wall, the arriving is guided onto the property by a black concrete sculpture, a freely deformed polished wall. A gently curved path leads via the east side to the entrance at the rear of the plot.
The relatively close buildings on the eastern and north- ern neighboring properties led to an angular building that is largely closed to these sides. To the view in South and West direction, however, the building structure opens with floor-to-ceiling or multi-storey glazing.
The angular shape of the structure compensates for the different building depths of neighboring buildings. Also it creates a sheltered courtyardlike exterior space in the pool and garden area. The cantilevered roofs protect the south-facing house from the sun and “direct and frame” the view into the valley.
This predominant view gave the house its name - Vista House.
The clients had precise ideas of the atmosphere of their home and the materials to be used. According to this claim Alexander Brenner designed an open house inside which the spaciousness of the rooms creates a feeling of comfort by the use of walls, wall panels and room defining fixtures.
The clients wish was to be also able to place their pieces of art on the walls. Therefore the living space is extended over two floors. In the lower garden level a rather introverted, warmer and more intense colored living room with a library, workplace, piano and fireplace was created. Via a single-flight stairway in an air space one reaches the bright, light- flooded upper living level. White dominates here as a neutral background for art. The flooring is made of deep dark bog oak floorboards. This flooring goes through all areas as a continu- ous companion, including the dining room, the kitchen, which can be used both connected or separated by two floor-to-ceiling high, solid oak doors.
Beyond the Gallery and the airspace the sleeping area with dressing room and bathroom is located, which almost feels like an open space due to the generous skylights.
The airspace itself is dominated by a light sculpture by artist Tobias Rehberger which interacts with the house. It is attached in front of the large, two storey high window in which at darkness reflections play, blending with the lights of the city while the pool shines like an abstract image.
Plot size
1.550 m³
Living area
440 m³
Utility space
196 m³
- Year
- 2012
- Project Status
- Built






















