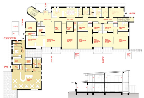
Neubau einer Kindertageseinrichtung

Hamburg, Germany

Entwurf
Alex Guth

Year
2008

Other Projects by Alex Guth Architekt 

Gutachten für den Neubau von öffentlich geförderten Wohnungen
Hamburg - Horn, Germany
Bebauungskonzept Gewerbehof Mendelssohnstraße 15
Hamburg - Bahrenfeld, Germany
Reihenhäuser Flurkamp
Hamburg - Osdorf, Germany
Wohnanlage Fibigerstraße
Hamburg-Langenhorn, Germany
Wohnquartier Suhrenkamp
Hamburg-Fuhlsbüttel / Alsterdorf, Germany