Indoor Swimming Pool Neutraubling
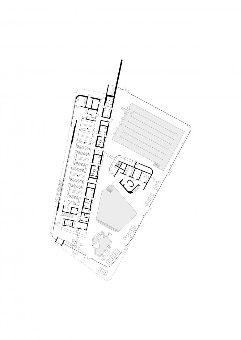
The new indoor swimming pool in Neutraubling shows how school and sports pools can also become attractive for families, recreational athletes and those seeking relaxation. Future bathers can expect a sports swimming pool and a leisure pool including a toddler area. The highlight: a wellness zone with sauna and steam bath is located between the pools. This clearly separates the different areas and at the same time increases the recreational value of the pool.
The indoor swimming pool in Neutraubling is characterized by a mix of clear forms and strong contrasts. From the outside, the building has a calm and sleek design and is divided into two flat volumes. These differ on the one hand in their function and on the other in their room height. The low structure accommodates the foyer and changing rooms, while the bathing hall is designed higher to meet the requirements. A spacious forecourt marks the entrance area and guides visitors into the building. Arranged parallel to the street, the changing room block forms a protective backdrop to the cemetery opposite and the residential areas to the west. The foyer and changing room wing are reduced in height and slide into the immediately adjacent, spacious bathing hall. With its sports, leisure and wellness area as well as catering facilities, this opens up extensively to the south and south-east towards the outside space.
In the center of the building, between the leisure and sports areas, is the wellness zone with steam baths, showers and relaxation areas. Glazed walls between the different zones provide good orientation and maintain the spacious feeling of the bathing hall. Inside, friendly, natural and robust materials that are durable and easy to clean lend the new indoor pool a feel-good atmosphere.
- Year
- 2025
- Project Status
- Built
- Client
- Stadt Neutraubling
- Team
- Martina Pfeiffer, Axel Hohensteiner (Projektleitung), Zachary Kimberling (Projektleitung), Alena Zgorskaya, Matthias Zwicker (Bauleitung)
- Site management
- Prokopetz Architekten + Ingenieure GmbH
- Landscape design
- Planstatt Senner
- Structural engineering
- Schneck Schaal Braun Ingenieurgesellschaft Bauen mbH
- Building physics
- Kurz und Fischer GmbH
- HVAC engineering
- Kannewischer Ingenieurgesellschaft mbH
- Electrical engineering
- UNI-TEC Projekt GmbH














