Schul- und Weiterbildungszentrum Pädagogische Akademie Elisabethenstift

Pützerstraße 18, 64287 Darmstadt, Deutschland
© Thilo Ross, Heidelberg

Der Neubau des dreigeschossigen Schul- und Weiterbildungsgebäudes nimmt als Riegel die nachbarlichen Baufluchten auf und schließt den Blockrand zur Pützerstraße. Durch die großzügige Geste einer mehrgeschossigen Glasfassade an der Südwestecke öffnet sich der Baukörper einladend zum Straßenraum. Mit seiner Ziegelfassade und den Fensterelementen in Holzbauweise erhält der Baukörper einen warmen und freundlichen Charakter und fügt sich so gut in das nachbarschaftliche Wohnumfeld ein.

© Thilo Ross, Heidelberg
© Thilo Ross, Heidelberg
© Thilo Ross, Heidelberg
© Thilo Ross, Heidelberg
© Thilo Ross, Heidelberg
© Thilo Ross, Heidelberg
© Thilo Ross, Heidelberg
© Thilo Ross, Heidelberg
© Thilo Ross, Heidelberg
© Thilo Ross, Heidelberg
© Thilo Ross, Heidelberg
© Thilo Ross, Heidelberg
© Thilo Ross, Heidelberg
© Thilo Ross, Heidelberg
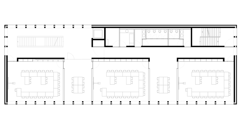
© Waechter + Waechter Architekten BDA
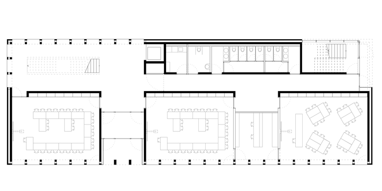
© Waechter + Waechter Architekten BDA
© Waechter + Waechter Architekten BDA
© Waechter + Waechter Architekten BDA
© Waechter + Waechter Architekten BDA
Jahr
2016
Bauherrschaft
Pädagogische Akademie Elisabethenstift
Auszeichnung
2018, BDA Hessen, Joseph-Maria-Olbrich-Plakette

Andere Projekte von Waechter + Waechter Architekten 

Sanierung und Aufstockung Herderschule
Darmstadt, Deutschland
AFZ Assessment- und Förderzentrum Neuwied
Neuwied-Engers, Deutschland
AIZ ‐ Akademie der Deutschen Gesellschaft für Internationale Zusammenarbeit (GIZ) am Campus Kottenforst
Bonn, Deutschland
Internat Berufsbildungswerk Josefsheim
Olsberg, Deutschland
Haus im Burggarten – Wohnpflegeheim
Breitenbach am Herzberg, Deutschland