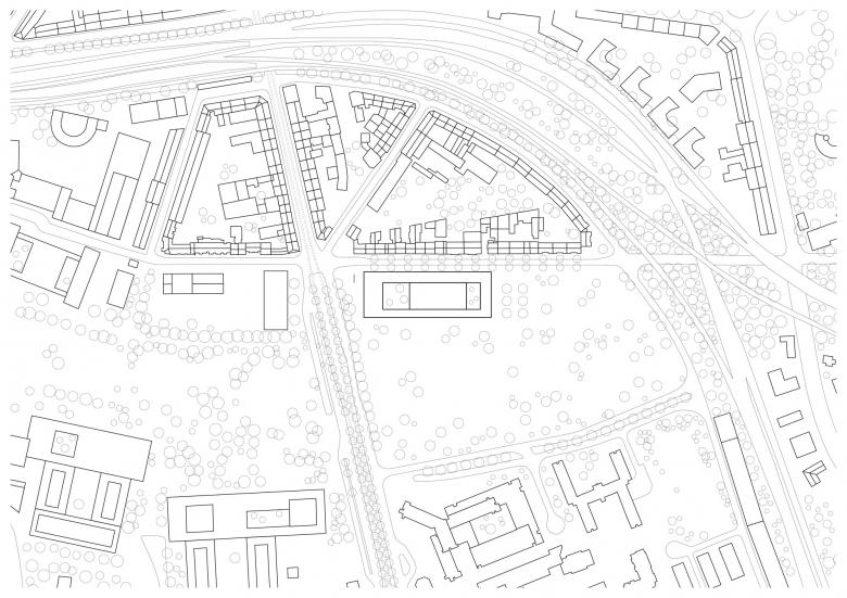
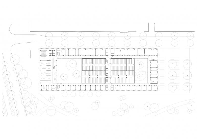
Historisches Archiv und Rheinisches Bildarchiv

Eifelwall 5, 50674 Köln
Foto © Brigida González

Eine dreigeschossige Mantelbebauung umfasst schützend die Archivalien – aus dem langgestreckten Schutzbau mit seiner ruhigen, zeitlos unaufgeregten Architektursprache, erhebt sich der fensterlose, auratische ‚Schrein‘ wie ein Schatzhaus.

Foto © Brigida González
Foto © Brigida González
Foto © Brigida González
Foto © Brigida González
Foto © Brigida González
Foto © Brigida González
Foto © Brigida González
Foto © Brigida González
Foto © Brigida González
Foto © Brigida González
Foto © Brigida González
Foto © Brigida González
Foto © Brigida González
Foto © Brigida González
Foto © Brigida González
Foto © Brigida González
Foto © Brigida González
Foto © Brigida González
Foto © Brigida González
Foto © Brigida González
Foto © Brigida González
Foto © Brigida González
Foto © Brigida González
Foto © Brigida González
Foto © Brigida González
Foto © Brigida González
Foto © Brigida González
Foto © Brigida González
Foto © Brigida González
Foto © Brigida González
Foto © Brigida González
Zeichnung © Waechter+Waechter Architekten BDA
Zeichnung © Waechter+Waechter Architekten BDA
Zeichnung © Waechter+Waechter Architekten BDA
Zeichnung © Waechter+Waechter Architekten BDA
Jahr
2021
Wettbewerb
2011, 1. Preis

Andere Projekte von Waechter + Waechter Architekten 

Sanierung und Aufstockung Herderschule
Darmstadt, Deutschland
AFZ Assessment- und Förderzentrum Neuwied
Neuwied-Engers, Deutschland
AIZ ‐ Akademie der Deutschen Gesellschaft für Internationale Zusammenarbeit (GIZ) am Campus Kottenforst
Bonn, Deutschland
Internat Berufsbildungswerk Josefsheim
Olsberg, Deutschland
Haus im Burggarten – Wohnpflegeheim
Breitenbach am Herzberg, Deutschland