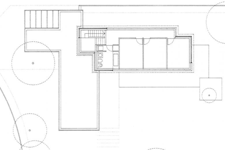
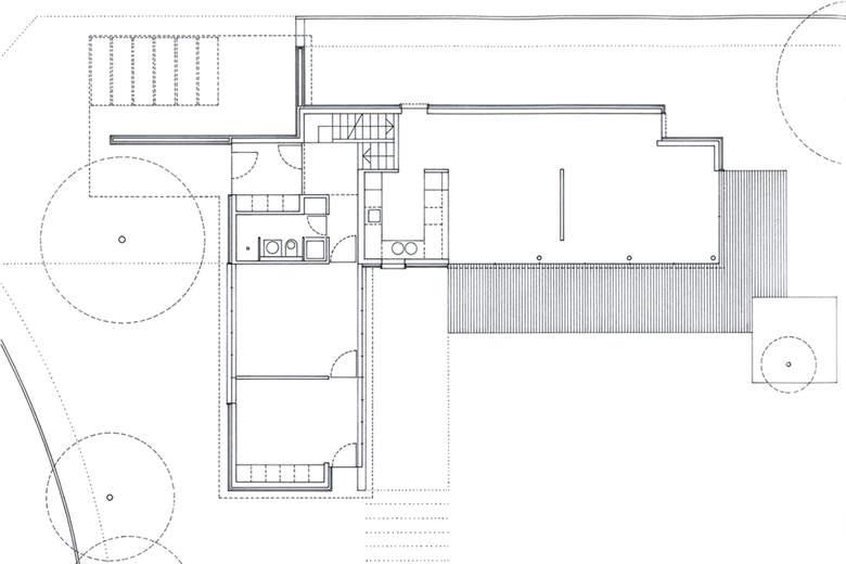
Haus L

Frankenberg l Eder, Deutschland
© Waechter + Waechter Architekten BDA, Darmstadt

Bauherr
privat

© Waechter + Waechter Architekten BDA, Darmstadt
© Waechter + Waechter Architekten BDA, Darmstadt
© Waechter + Waechter Architekten BDA, Darmstadt
© Waechter + Waechter Architekten BDA, Darmstadt
© Waechter + Waechter Architekten BDA, Darmstadt
© Waechter + Waechter Architekten BDA, Darmstadt
© Waechter + Waechter Architekten BDA, Darmstadt
© Waechter + Waechter Architekten BDA, Darmstadt
© Waechter + Waechter Architekten BDA, Darmstadt
© Waechter + Waechter Architekten BDA, Darmstadt
Jahr
1999
Bauherrschaft
privat

Andere Projekte von Waechter + Waechter Architekten 

Sanierung und Aufstockung Herderschule
Darmstadt, Deutschland
AFZ Assessment- und Förderzentrum Neuwied
Neuwied-Engers, Deutschland
AIZ ‐ Akademie der Deutschen Gesellschaft für Internationale Zusammenarbeit (GIZ) am Campus Kottenforst
Bonn, Deutschland
Internat Berufsbildungswerk Josefsheim
Olsberg, Deutschland
Haus im Burggarten – Wohnpflegeheim
Breitenbach am Herzberg, Deutschland