Gemeindezentrum Petrusgemeinde
Friedrichstraße 5, 69168 Wiesloch, Deutschland
© Thilo Ross, Heidelberg
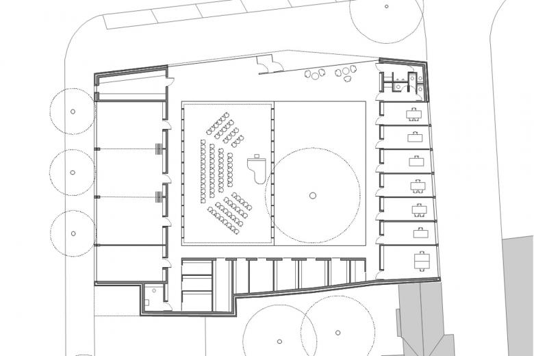
Der neue Gemeindesaal und ein Innenhof gleicher Größe bilden den Mittelpunkt, das ‚Herz’ des neuen evangelischen Gemeindezentrums der Petrusgemeinde. Damit wird auch räumlich dokumentiert, dass die Gemeinschaft im Mittelpunkt des Gemeindelebens steht. Ringförmig liegen alle Nutzungen des Gemeindezentrums um diese neue Mitte, die so zentrales, ordnendes Element ist.
© Thilo Ross, Heidelberg
© Thilo Ross, Heidelberg
© Thilo Ross, Heidelberg
© Thilo Ross, Heidelberg
© Thilo Ross, Heidelberg
© Thilo Ross, Heidelberg
© Thilo Ross, Heidelberg
© Thilo Ross, Heidelberg
© Thilo Ross, Heidelberg
© Waechter + Waechter Architekten, BDA
© Waechter + Waechter Architekten, BDA
© Waechter + Waechter Architekten, BDA
© Waechter + Waechter Architekten, BDA
-
Jahr
-
2016
-
Bauherrschaft
-
Evangelische Kirchengemeinde Wiesloch
-
Mehrfachbeauftragung
-
2013, 1. Platz
-
Auszeichnung
-
2017 - BDA Heidelberg - Hugo-Häring-Auszeichnung
-
1. Preis
-
2018 - Holzbaupreis Baden-Württemberg
-
Auszeichnung
-
2019 - Baukultur Kraichgau
-
Auszeichnung
-
2019 - Beispielhaftes Bauen Rhein-Neckar 2009 - 2019
-
Auszeichnung
-
2020 - Staatspreis Baukultur Baden-Württemberg
Sanierung und Aufstockung Herderschule
Darmstadt, Deutschland
AFZ Assessment- und Förderzentrum Neuwied
Neuwied-Engers, Deutschland
AIZ ‐ Akademie der Deutschen Gesellschaft für Internationale Zusammenarbeit (GIZ) am Campus Kottenforst
Bonn, Deutschland
Internat Berufsbildungswerk Josefsheim
Olsberg, Deutschland
Haus im Burggarten – Wohnpflegeheim
Breitenbach am Herzberg, Deutschland