Gemeindehaus Petersgemeinde Frankfurt

Oeder Weg, Frankfurt am Main, Deutschland
© Waechter + Waechter Architekten BDA, Darmstadt

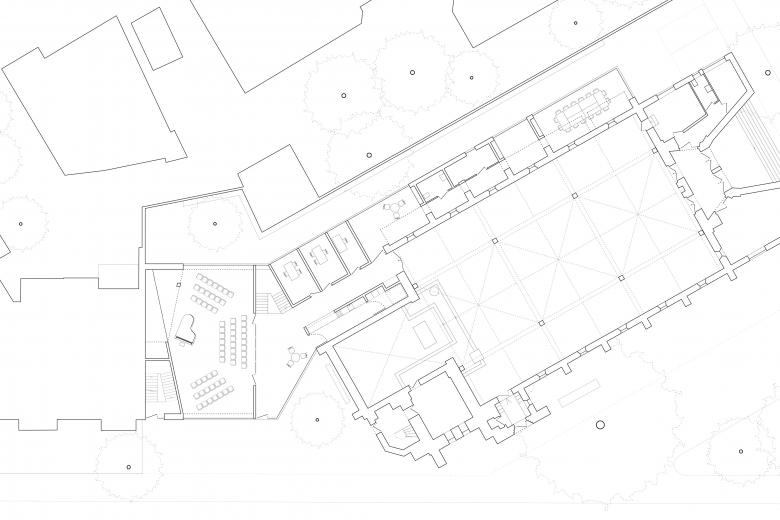
Das bestehende Gemeindehaus der evangelischen Petersgemeinde im Frankfurter Nordend ist abgängig. Der Neubau vermittelt zwischen der denkmalgeschützten Epiphaniaskirche im Süden und der nördlich angrenzenden Gründerzeitbebauung.

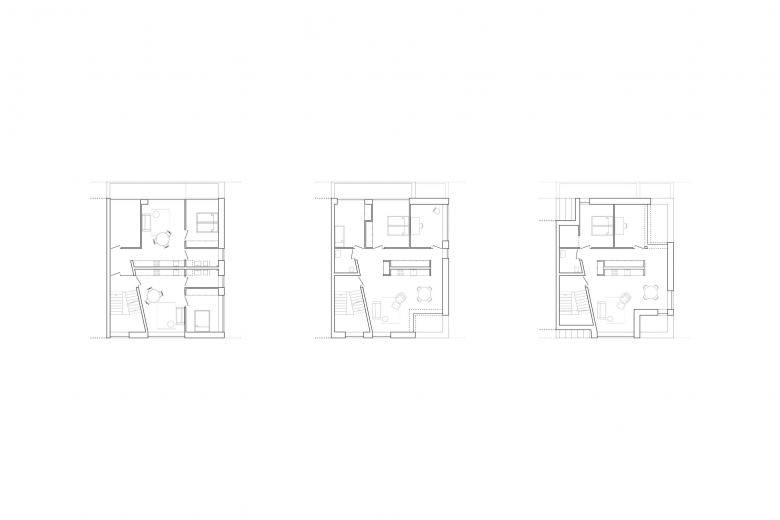
Ein eingeschossiger Bau schließt an die Kirche und umfasst das östliche Seitenschiff. Aus dem Flachbau entwickelt sich ein viergeschossiger Baukörper, welcher die Höhen und Dachneigungen der nördlich angrenzenden Wohnbebauung aufnimmt. Straßenseitig überformt ein zwerchhausartiger Giebel die Schrägen in ein Flachdach. Nach Süden bilden zwei prägnante, unterschiedlich ausgeformte Eckloggien, einen angemessenen Abschluss als Gegenüber der Kirche.

Das Foyer verknüpft die Kirche mit dem überhöhten Gemeindesaal, der sich über ein großes Schaufenster in den Straßenraum öffnet. In den drei darüber liegenden Geschossen befinden sich 4 Wohnungen, welche durch unterschiedlich orientierte Freisitze charakterisiert werden.

Architektenauswahlverfahren – 2017 – 1. Preis

© Waechter + Waechter Architekten BDA, Darmstadt
© Waechter + Waechter Architekten BDA, Darmstadt
© Waechter + Waechter Architekten BDA, Darmstadt
© Waechter + Waechter Architekten BDA, Darmstadt
Jahr
2017 - 2022
Bauherrschaft
Evangelischer Regionalverband Frankfurt am Main

Andere Projekte von Waechter + Waechter Architekten 

Sanierung und Aufstockung Herderschule
Darmstadt, Deutschland
AFZ Assessment- und Förderzentrum Neuwied
Neuwied-Engers, Deutschland
AIZ ‐ Akademie der Deutschen Gesellschaft für Internationale Zusammenarbeit (GIZ) am Campus Kottenforst
Bonn, Deutschland
Internat Berufsbildungswerk Josefsheim
Olsberg, Deutschland
Haus im Burggarten – Wohnpflegeheim
Breitenbach am Herzberg, Deutschland