Bildungscampus Luise Büchner - Lincoln-Siedlung

Einsteinstraße 3, 64285 Darmstadt, Deutschland
Foto © Brigida González, Stuttgart

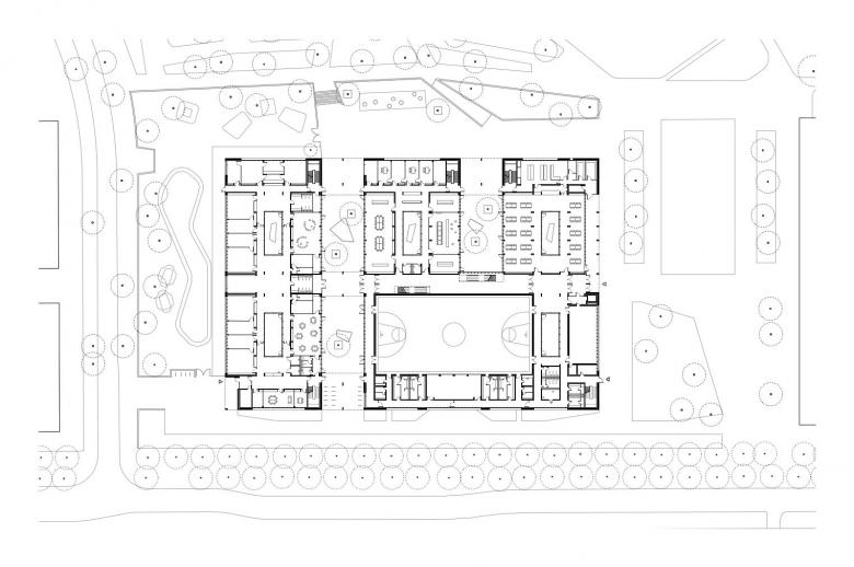
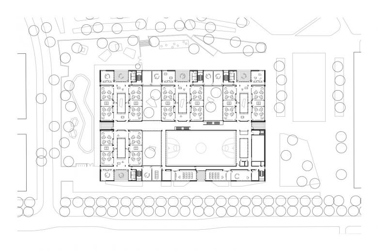
Schule und Kindertagesstätte sind zu einem Baukörper zusammengefügt, jedoch auch eigenständig ablesbar. Durch die ebenengleiche Anordnung aller Klassen wird der Austausch der Schüler zwischen den Jahrgangsstufen und so das Lernen von- und miteinander gefördert. Die Klassenräume öffnen sich zu den pädagogisch vielfältig nutzbaren, räumlich differenzierten Lernzonen. So entstehen unterschiedliche Bereiche, die selbstorganisierten, offenen wie auch abgeschlossenen Wissenserwerb, Lernen und Arbeiten alleine oder in der Gruppe ermöglicht. Die Gruppenräume der Kindertagesstätte sind L-förmig um zwei Lichthöfe angeordnet und zu den zugehörigen vorgelagerten Freiräumen orientiert.

BDA Hessen, Joseph-Maria-Olbrich Plakette – 2023 – Auszeichnung
Vorbildliche Bauten in Hessen – 2023 – Shortlist

Foto © Brigida González, Stuttgart
Foto © Brigida González, Stuttgart
Foto © Brigida González, Stuttgart
Foto © Brigida González, Stuttgart
Foto © Brigida González, Stuttgart
Foto © Brigida González, Stuttgart
Foto © Brigida González, Stuttgart
Foto © Brigida González, Stuttgart
Foto © Brigida González, Stuttgart
Foto © Brigida González, Stuttgart
Foto © Brigida González, Stuttgart
Foto © Brigida González, Stuttgart
Foto © Brigida González, Stuttgart
Foto © Brigida González, Stuttgart
Foto © Brigida González, Stuttgart
Lageplan
Zeichnung © Waechter + Waechter Architekten BDA, Darmstadt
Grundriss Erdgeschoss
Zeichnung © Waechter + Waechter Architekten BDA, Darmstadt
Grundriss Obergeschoss
Zeichnung © Waechter + Waechter Architekten BDA, Darmstadt
Schnitt quer
Zeichnung © Grundriss Erdgeschoss
Schnitt längs
Zeichnung © Grundriss Erdgeschoss
Jahr
2021
Bauherrschaft
Wissenschaftsstadt Darmstadt
Wettbewerb
2016 - 1. Preis

Andere Projekte von Waechter + Waechter Architekten 

Sanierung und Aufstockung Herderschule
Darmstadt, Deutschland
AFZ Assessment- und Förderzentrum Neuwied
Neuwied-Engers, Deutschland
AIZ ‐ Akademie der Deutschen Gesellschaft für Internationale Zusammenarbeit (GIZ) am Campus Kottenforst
Bonn, Deutschland
Internat Berufsbildungswerk Josefsheim
Olsberg, Deutschland
Haus im Burggarten – Wohnpflegeheim
Breitenbach am Herzberg, Deutschland