Betreutes Wohnen am Ostpark

Schlesienstraße 1, 65428 Rüsselsheim, Deutschland
© Thomas Ott

'In Würde alt werden. ... Eine klare, präzise durchdetaillierte Architektur bildet den unaufdringlichen Rahmen für die persönliche Entfaltung. ... Besonders überzeugt die Idee, das Haus entlang der stark befahrenen Straße über den voll verglasten Laubegang so zu erschließen, dass jede Wohneinheit über eine vorgelagerte Zone für das Gespräch außerhalb der eigenen Räume verfügt. Über Haustüren (nicht Wohnungstüren) werden die jeweiligen Wohnungen, die dank der großflächigen Verglasung lichtdurchflutet sind, erschlossen. ... Kurzum: eine vorbildliche, eine beispielhafte Lösung'

Jury Vorbildliche Bauten in Hessen 2005

© Thomas Ott
© Thomas Ott
© Thomas Ott
© Thomas Ott
© Thomas Ott
© Thomas Ott
© Thomas Ott
© Thomas Ott
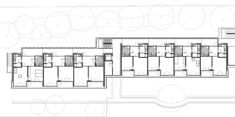
© Waechter + Waechter Architekten BDA, Darmstadt
Jahr
2006
Bauherrschaft
Stadt Rüsselsheim
Auszeichnung
Vorbildliche Bauten in Hessen 2005
Anerkennung
2007, Brick Award

Andere Projekte von Waechter + Waechter Architekten 

Sanierung und Aufstockung Herderschule
Darmstadt, Deutschland
AFZ Assessment- und Förderzentrum Neuwied
Neuwied-Engers, Deutschland
AIZ ‐ Akademie der Deutschen Gesellschaft für Internationale Zusammenarbeit (GIZ) am Campus Kottenforst
Bonn, Deutschland
Internat Berufsbildungswerk Josefsheim
Olsberg, Deutschland
Haus im Burggarten – Wohnpflegeheim
Breitenbach am Herzberg, Deutschland