RWTH Aachen Sanierung des 1. Sammelbaus Maschinenwesen
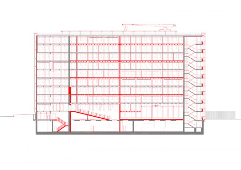
Der 1. Sammelbau Maschinenwesen der RWTH Aachen wurde 1964 als Hochhaus im innerstädtischen Ring erstellt. Die Fakultät für Maschinenwesen der
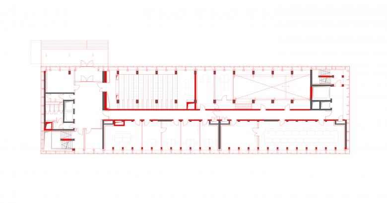
RWTH Aachen nutzt im Gebäude Büro- und Seminarräume sowie Werkstätten und Laboratorien.
Das Bestandsgebäude wurde bis auf die Rohbaustruktur entkernt. Die verbleibende Tragstruktur wurde sowohl statisch als auch brandschutztechnisch ertüchtigt. Eine neue Elementfassade umhüllt das Gebäude.
Der neue Innenausbau wurde gezielt für die Nutzung als Büro- und Seminargebäude sowie als Hörsaal und Werkstätten für die Lehrstühle der RWTH Aachen ausgeführt. In das Hochhaus wurden gemäß Hochschulstandort- und Entwicklungskonzept weitere Institute aus anderen Gebäuden integriert.
SSP AG hat im Rahmen einer Machbarkeitsstudie ein Kernsanierungskonzept, das neben einer Funktionsoptimierung der Nutzflächen und der Betriebsabläufe auch die Wiederherstellung eines repräsentativen Erscheinungsbildes in den Fokus rückt. Maximale Nutzungsflexibilität sowie eine optimierte Energieeffizienz runden das nachhaltige Gebäudekonzept ab.
Die sorgfältig detaillierte Elementfassade zeichnet sich bei Tag durch eine stringente horizontale Gliederung aus und nimmt damit Bezug auf das ursprüngliche Erscheinungsbild. Bei Nacht strahlen die farblich akzentuierten Treppenräume durch die transluzente Fassade und korrespondieren mit dem Stadtraum.
Ein zartes, filigranes Stahlvordach auf drei verchromten Stützen zieht sich über den Eingangsbereich und richtet das sanierte Hochhaus im Erdgeschoss neu aus.
Der sanierte Sammelbau trägt durch eine hohe Energieeinsparung (Dämmung der Gebäudehülle, hoch effiziente Energierückgewinnung), eine modulare Grundrissgestaltung und flexible Nutzung zur Zukunftsfähigkeit dieses innerstädtischen Standortes der RWTH Aachen bei.
Bei der Sanierung wurden wesentliche Maßgaben gemäß dem Bewertungssystem Nachhaltiges Bauen (BNB) für die Zertifizierung in Silber umgesetzt.
- Jahr
- 2020
- Project Status
- Gebaut



















