Reinoldi Gesamtschule Dortmund Westerfilde
Der Wandel der Schulpädagogik und die Neuinterpretation der Unterrichtsformen veranlassten die Stadt Dortmund, den Standort und das, in mehreren Abschnitten erweiterte, aber in die Jahre gekommene Hauptgebäude der Reinoldi Gesamtschule auf dessen Zukunftsfähigkeit zu prüfen. Die Analyse empfahl einen Neubau.
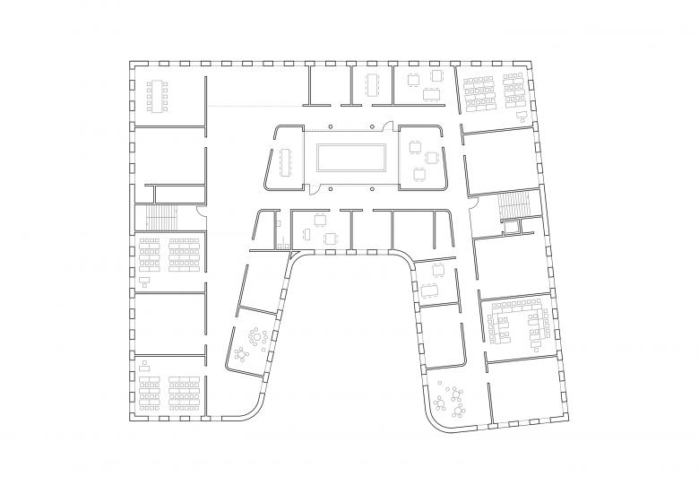
Das U-förmige Gebäude positioniert sich einladend zum Schulhof, wurde aber abgerückt von der Straße auf dem zurückliegenden Teil des Schulcampus positioniert. Mit den Sporthallen und dem naturwissenschaftlichen Erweiterungsbau bildet das Hauptgebäude eine städtebauliche Einheit.
Der Komplex gliedert sich, auch über die Fassade und dessen Materialität sichtbar, in der Vertikalen. Foyer, Mensa und Spielzentrum bilden im Erdgeschoss ein Mehrzweck – Kommunikationsforum. Der Schulverwaltungsbereich ist an das Forum, wie auch zwei Treppenhauskerne angeschlossen. In den zwei Obergeschossen sind 18 Klassenzimmer mit Individual- und Teamräumen in zusammenhängenden Clustern organisiert. Die Flure weiten sich teils konisch zu Selbstlernzonen und laufen in der Gebäudemitte auf einen Patiogarten zu. Im Obergeschoss ist eine Bibliothek mit Blick auf den Campus und eine Dachterrasse mit Perspektive auf den anliegenden Wald geplant.
Neben dem ersten Pädagogen (Lehrer) und dem zweiten Pädagogen (Mitschüler) beeinflusst auch das Gebäude als dritter Pädagoge das Lernklima.
- Jahr
- 2020
- Project Status
- Gebaut



















