Kindertagesstätte Im Weckholder

Aichtal, Deutschland
Foto © Brigida González

Ein klar gegliederter, hellgrauer Baukörper – der neue Kindergarten in Aichtal bei Stuttgart lässt sich durch seine monochrome Farbgebung ganz auf die Reize der umgebenden Landschaft ein.
Mit einem Quartiersplatz im Westen und freier Aussicht dank lockerer Bebauung ist das Grundstück geradezu optimal gelegen. 2012 hatte das Stuttgarter Büro von Christof Simon den Wettbewerb gewonnen.

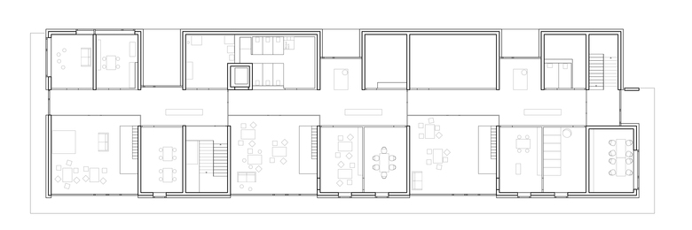
Hinter dem mineralischen Kratzputz verbergen sich 20 Zentimeter Wärmedämmverbundsystem vor einer Ortbetonkonstruktion. Darin befinden sich Räume für drei Kindergartengruppen im Obergeschoss und zwei Krippengruppen im Erdgeschoss. Rückzugsräume und verglaste Gemeinschaftsflächen wechseln sich ab, eingebaute Möbel und Fensterbänke können beklettert werden und aufgeklebte Sinnsprüche an den Scheiben sollen Beulen an den Köpfen vorbeugen.

Eine umlaufende Veranda spendet Schatten und bietet einen sanften Übergang zwischen Innen und Außen, der zur Erkundung einlädt.
Erst auf den zweiten Blick wird deutlich, wie stark sich die Architekten hier von einem baulichen Element aus dem Süden der USA inspirieren ließen: die ‚porch‘ ist geschützter Außenraum und sozialer Treffpunkt, aber auch ein Ort um schmutzige Arbeitskleidung abzulegen, bevor man das Haus betritt.
Der grüne Freibereich unter weißen Schirmen lädt zum Spielen ein – bei jeder Witterung. Man kann sich vorstellen, dass die weißen Oberflächen und raumhohen Glasscheiben nicht lange weiß bleiben. Eine „Schmutzschleuse“ soll daher das Gröbste verhindern.

Gleichzeitig betonen die Architekten die bewusste Farbwahl:
Kinder und Erzieherinnen sollen so die Möglichkeit zur „individuellen Inbesitznahme“ erhalten. Die Idee ist schön, denn während ihrer Zeit in der Einrichtung lernen die Kleinkinder, Fantasie und Realität zu unterscheiden. Der weiße Raum bietet dafür einen guten Hintergrund. Die eingebauten Bilderschienen in den Wänden sind allerdings keine Einrichtung, die von Kleinkindern eigenständig bedient werden könnte. Insofern darf man auf die Ergebnisse dieses Aneignungsprozesses gespannt sein.
baunetz, dd

Foto © Brigida González
Foto © Brigida González
Foto © Brigida González
Foto © Brigida González
Foto © Brigida González
Foto © Brigida González
Foto © Brigida González
Foto © Brigida González
Foto © Brigida González
Foto © Brigida González
Foto © Brigida González
Foto © Brigida González
Foto © Brigida Gonzalez
Schnitt
Zeichnung © SFA
Grundriss OG
Zeichnung © SFA

Andere Projekte von SFA Simon Freie Architekten BDA 

Betriebshof und Städtebauliche Neuordnung Wingertsbuckel
Mannheim
Kulturzentrum Uhingen
Uhingen, Deutschland
Forschungsgebäude für Pharmazie
Saarbrücken, Deutschland
Kindertagesstätte Limespark
Kindertagesstätte und Jugendzentrum
Stuttgart, Deutschland