California College of the Arts Campus Expansion
San Francisco, CA, USA
Studio Gang, the international architecture and urban design firm led by Jeanne Gang, has completed an expansion on the California College of the Arts’ (CCA) campus in San Francisco. The new building physically extends from CCA’s existing main academic building to create a vibrant indoor-outdoor environment for learning and making, strengthening relationships among varied people, ideas, and creative practices.
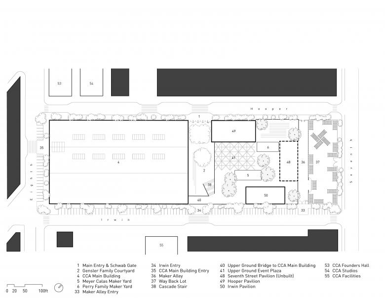
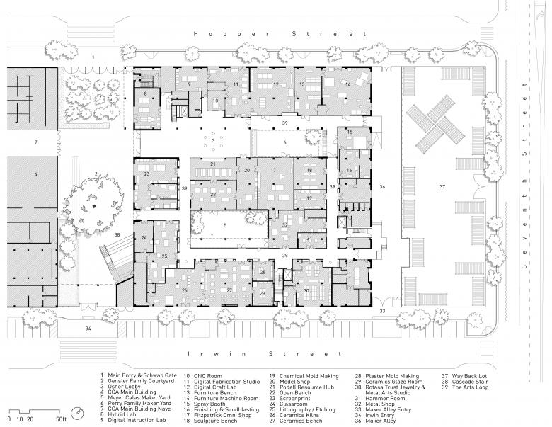
Founded during the Arts and Crafts movement at the turn of the 20th century, CCA has grown to encompass 34 art and design disciplines, from jewelry, ceramics, and textiles to metal arts, architecture, and animation. Conceived as a creative ecosystem where different disciplines can productively interact and overlap, the 82,305 square foot building provides new art-making facilities, learning spaces, and green spaces that support its diverse community. The concrete ground level is a hub of indoor-outdoor workshops for more physically intensive creative practices and large-scale fabrication. Organized around shared materials and equipment, this level’s open, flexible plan makes the different programs visible and accessible to one another, promoting interdisciplinary interaction. Carved out of the concrete lower level, two large maker yards provide additional workspace and enable fresh air and natural light to penetrate deep within the interior.
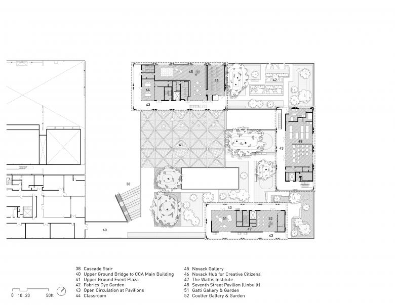
Emerging from the building’s base, two mass timber pavilions house classrooms, art studios, and the new home of the CCA Wattis Institute for Contemporary Arts. Both pavilions lead onto a green terraced landscape that unites the building’s lower and upper levels. Their deep balconies enable exterior circulation as well as informal learning, working, and social spaces where the CCA community can enjoy San Francisco’s mild climate. Their structures, which are among the first exposed mass timber structures in California and include a one-of-a-kind eccentric braced frame system, allow their natural materiality and lateral and gravity loads to be visible.
Through a welcoming new streetscape and programs that seek to increase the impact of art in the wider community, the new building enhances CCA’s connection to San Francisco’s design and innovation district as well as the wider Bay Area and its environmental, entrepreneurial, and creative cultures.
The design also supports CCA’s commitment to sustainability through strategies that serve environmental and experiential purposes. The hybrid mass timber structure and minimal finishes reduce the building’s embodied carbon footprint by almost half that of a typical baseline building. Physically intensive practices with heavy equipment are strategically located to concentrate structural loads and mechanical infrastructure on the ground level as well as provide adaptability as new needs, mediums, and technologies develop. Other passive design strategies, such as self-shading façades and night-flush ventilation, naturally cool the building to reduce the size and energy demand of mechanical systems. The building also has infrastructure in place to enable a closed-loop, net-positive building in the future.
- Architekten
- Studio Gang
- Jahr
- 2024
- Bauherrschaft
- California College of the Arts
- Team
- Jeanne Gang, Steve Wiesenthal, William Emmick, Olesya Vodenicharska, Mark Schendel, Vincent Calabro, Ellen Anderson, Kimberly Daul, Alan Huang, Christina Kull, Taylor Metcalf, Claire Halpin, Dimitra Gelagoti, Jason Flores, Clifford Vickrey, Mauricio Sanchez, Aurelien Tsemo, Andrea Rovetta
- Design Architect and Architect of Record
- Studio Gang
- Associate Architect
- TEF Design
- Owner's Representative
- Dovetail Construction Project Management
- Sustainability Consultant
- Atelier Ten
- Structural Engineer and Acoustics Engineer
- Arup
- MEP/FP Engineer
- MEYERS+
- Landscape Architect
- Surfacedesign, Inc.
- Civil Engineer
- Lotus Water
- Lighting Designer
- PritchardPeck
- Wayfinding and Signage
- Public Design
- Code, Fire, and Life Safety Consultant
- Coffman Engineers
- Thermal and Waterproofing Consultant
- Thornton Tomasetti
- Dry Utility Consultant
- Urban Design Consulting Engineers
- General Contractor
- Hathaway Dinwiddie Construction Company



























