Schäfer Roofscape

San Candido/Innichen, Italien
Foto © Holger Kehn

Located in the medieval centre of San Candido/Innichen, Schäfer Roofscape is a newly-completed restoration and conversion of a historical building.

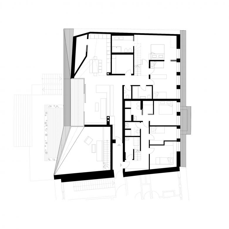
The first three storeys house a department store while the upper three storeys serve as four large, independent apartments within the formerly underused attic space.
The building faces a public plaza protected by local regulations, thus, the project focuses on its rear facade. On this west-facing elevation, Plasma Studio explores how slicing and folding can be employed to expand the limits of the ubiquitous pitch roof typology: large glazed balcony slots produce bright, contemporary living conditions and generous exterior expansion space within this dense urban situation. A marked departure from the neighbouring vernacular buildings.

Zeichnung © Plasma Studio
Foto © Michael Pezzei
Foto © Holger Kehn
Foto © Michael Pezzei
Foto © Michael Pezzei
Foto © Michael Pezzei
Foto © Michael Pezzei
Foto © Michael Pezzei
Zeichnung © Plasma Studio
Zeichnung © Plasma Studio
Zeichnung © Plasma Studio
Jahr
2014
Bauherrschaft
Private
Design Team
Eva Castro, Ulla Hell, Holger Kehne, Peter Pichler, Maya Shopova, Chuan Wang

Andere Projekte von Plasma Studio 

Hotel A.
South Tyrol, Italien
The Future of Brno - Architectural
Brno, Tschechische Rebublik
Sunken Garden
Beijing, China
Paramount-Alma
Sexten/Sesto, Italien
Ordos 20+10
Ordos, China