Oase Oerlikon

Oerlikon, Schweiz
Visualisierung © Filippo Bolognese

Die «Oase Oerlikon» ist ein hybrider Stadtbaustein in einem harten urbanen Kontext. Er besteht aus einer Stapelung von einem doppelgeschossigen öffentlichen Erdgeschoss, einem kompakten Volumen für Wohnen und Pflege und einer gemeinschaftlich genutzten, grünen Dachterrasse.

Das Volumen umschliesst einen innenliegenden Dorfplatz, der sich nach oben in einen lebendigen Wohnhof aufweitet bis hin zur gemeinschaftlich genutzten Dachterrasse und somit die verschiedenen Öffentlichkeitsgrade und Anforderungen des Programms miteinander verschränkt und ein selbstverständliches Miteinander der Nutzer entstehen lässt.

Die Kombination von Holz- und Betonbauweise folgt dieser programmatischen Aufteilung und konstruktiven Logik, was zu einem innovativen und nachhaltigen Gebäude führt, welches architektonisch-räumliche und strukturell-konstruktive Aspekte vereint.

Die Zirkulations- und Aufenthaltsräume ergänzen und überlagern sich in einer Sequenz von Begegnungsmöglichkeiten in der Vertikalen. Dieses Konzept bietet je nach Tageszeit verschiedene Möglichkeiten der sozialen oder individuellen Interaktion. Es entsteht ein Zuhause, welches durch die subtilen Differenzierungsgrade von Öffentlichkeit, Freiraumqualität und Materialität geprägt wird.

Visualisierung © Filippo Bolognese
Visualisierung © Filippo Bolognese
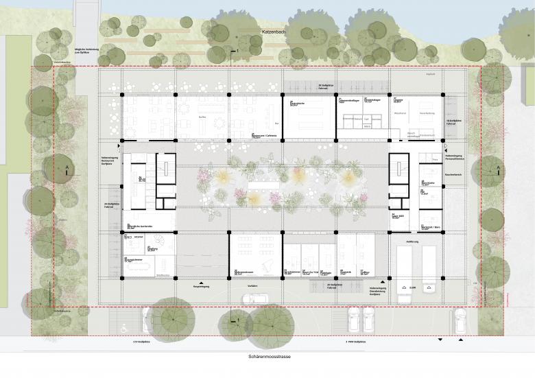
Zeichnung © KCAP
Zeichnung © KCAP
Zeichnung © KCAP
Bild © KCAP
Jahr
2022
Bauherrschaft
moyreal immobilien ag
Programm
Gebäude (9.486 m2 GF) mit 2 Pflegeabteilungen (1.808 m2 GF), öffentlichen Dienstleistungen und Hotelleriebereich (2.031 m2 GF), sowie 66 Wohneinheiten Alterswohnen von 1,5 - 4,5 Zi. (5.279 m2 GF) und 5 Wohnungen für Careleaver mit Gemeinschaftsraum (367 m
Rolle
Architekt
Partizipierende Parteien
Fanzun, Raumanzug, Schnetzer Puskas Ingenieure, Studio Vulkan

Andere Projekte von KCAP Zürich 

Bahnhofsareal Erlenbach
Erlenbach, Schweiz
Aktualisierung der Hochhausrichtlinien Zürich
Zürich, Schweiz
Keflavík Airport Area
Keflaík, Iceland
The Reef
Singapur, Singapur
Riverside
Zuchwil, Schweiz