Umbau Atelier Stauffacherstrasse
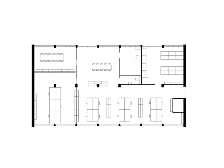
Das schmale viergeschossige, von der Denkmalpflege als beachtenswert eingestufte Fabrikationsgebäude, wurde 1955 von Lienhard und Strasser Architekten als Erweiterung der alten Produktionshalle der Leinenweberei Schwob erstellt. Die hohen und durch die beidseitige Befensterung lichtdurchfluteten Räume im Parterre wurden ursprünglich zur Endkontrolle der Leinenstoffe genutzt. Vor dem Umbau waren die Räume hauptsächlich als Lager genutzt und mit zahlreichen Einbauten ergänzt und verunklärt worden. Durch die Entfernung der Einbauten konnte die ursprüngliche Struktur mit der mittigen Stützenreihe freigelegt und die Qualität der Fabrikationsräume wieder sichtbar gemacht werden.
In dem Hauptraum werden durch den Einbau einer filigranen Glaswand zwei Bereiche akustisch abgetrennt. Der fliessende Raum wird mittels tiefer Regale zoniert. Die neuen Leuchten und textile Akustikelemente an der Decke schaffen eine angenehme Atelieratmosphäre. Eine Küche sowie ein Lagerraum werden im nordseitigen ehemaligen Anlieferungsbereich untergebracht.
2013
Bauherrschaft : Schwob Immobilien
Mitarbeit : Mirko Nydegger, Marc Haller, Christian Gut
- Jahr
- 2013

