Wohnanlage Am Dorfbach

Hard, Österreich
Markus Gohm
Foto © Markus Gohm

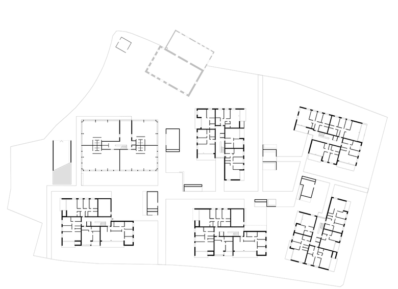
Fünf Wohnhäuser mit jeweils einer „fehlenden Ecke“ im rechteckigen Grundriss stehen verdreht zueinander am Grundstück, was nicht nur mit einer daraus resultierenden räumlichen Vielfalt, sondern auch mit dem Bezug zur dicht bebauten Umgebung des Harder Zentrums zu tun hat. Die Wohnungsgrundrisse sind entsprechend unterschiedlich und komplex, denn für jede Wohnung gelten andere Voraussetzungen. In einem sechsten Haus über dem vollständigen Rechteck sind gewerbliche Firmen und Dienstleister untergebracht, es dient als Vermittler zwischen „drinnen“ und „draußen“ und hält diese Grenze beweglich. Zugleich beginnt hier eine Abfolge von öffentlichen, halböffentlichen und privaten Räumen, Wegen, Höfen und Nischen – ein Dorf am Bach.

Foto © Ulf Hiessberger
Foto © Ulf Hiessberger
Foto © Ulf Hiessberger
Foto © Ulf Hiessberger
Foto © Ulf Hiessberger
Foto © Ulf Hiessberger
Foto © Ulf Hiessberger
Foto © Ulf Hiessberger
Erdgeschoss
Obergeschoss
Schnitt
Jahr
2017
Bauherrschaft
Zima Holding AG, I+R Wohnbau GmbH
Team
Landschaftsplanung Nicoletta Piersantelli
Architekten
Arge Gohm Hiessberger und Archetypen

Andere Projekte von Gohm Hiessberger Architekten 

Wohnanlage Kreuzbergstrasse
Feldkirch Nofels, Österreich
BH Feldkirch - Zubau
Feldkirch, Österreich
Umbau Palais Liechtenstein
Feldkirch, Österreich
Einfamilienhaus S.
Dalaas, Österreich
Wohnanlage Papillon
Mauren, Liechtenstein