Makoko Neighborhood Hotspot
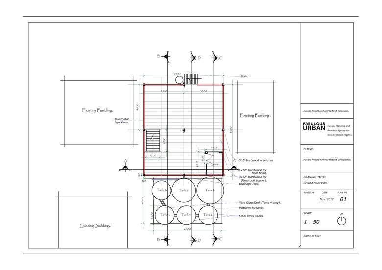
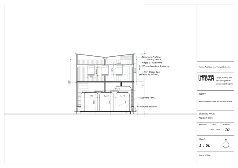
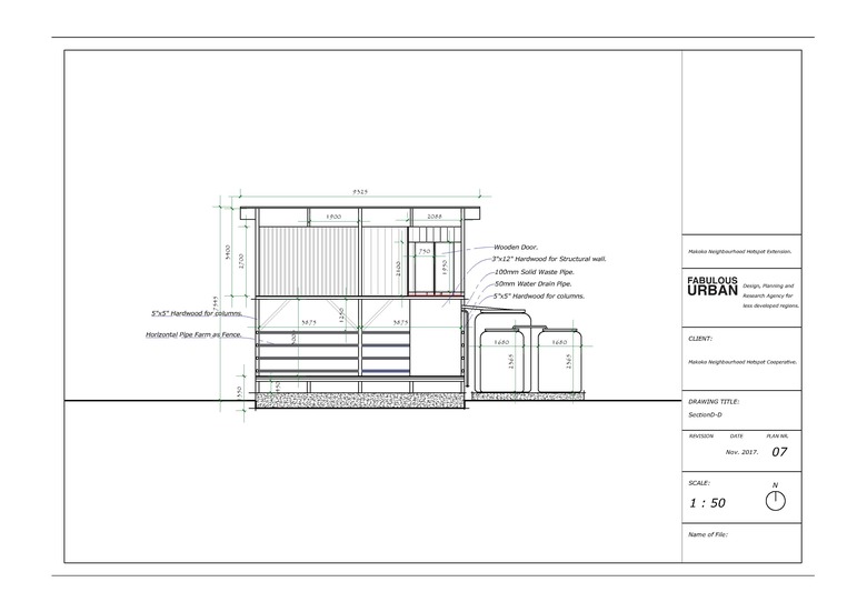
From 2013 to 2017, FABULOUS URBAN developed and implemented the Makoko Neighborhood Hotspot as part of the Makoko Urban Design Toolbox and the Makoko/Iwaya Waterfront Regeneration Plan. The Makoko Neighborhood Hotspot was designed as a technical and social infrastructure for one of Lagos' best-known urban slum settlement that is Makoko. It serves as an infrastructure hub providing urban services such as biogas linked community toilets and as a business incubator promoting waste-to-energy principles. Last but not least, its purpose is to serve at large as a community empowerment tool and learning center. The Hotspot represents more of a concept than a project even though the architectural design aspect was carefully and ambitiously developed. Its conceptualization and building phases confronted the poor underserved Makoko communities with a series of tough and difficult decision-making processes. After the completion of the structure and its inauguration in December 2015 the second project phase led in 2016 to the formation of the “Makoko Neighborhood Hotspot Multipurpose Cooperative Society Limited”, officially registered at the Lagos State Department of Cooperatives. It serves as the operational and administrative body of the Hotspot with its 20 members and a 7-strong management committee, compromising positions of the president, the secretary, and the treasurer, among others. One of the key tasks of the committee is the hiring, payment and supervision of employees. For this purpose, three business plans were drafted to ensure the sustainable set-up and long-term operation of the envisioned Hotspot activities. The implemented business activities – biogas-linked community toilets, biogas production, water treatment, and farming pipes – provide since December 2017, the end of the third project phase, the badly needed infrastructure for roughly 200 people. During the pilot phase, 10 families will receive cooking gas to be refilled at the Hotpot with specifically designed biogas rucksacks. As a business incubator, the Hotspot serves as pilot or prototype approach that could and should be replicated in other parts of the community and in other slum/ low-income settlements in Lagos State. One of the long-term goals of the Neighborhood Hotspot initiative is to inspire the government on how the dramatic lack of infrastructure in many communities and within large parts of the population could be approached, namely with the implemented decentralized strategic yet low-cost interventions.
https://www.facebook.com/MakokoNeighborhoodHotspot/
- Gemeinschaftszentren
- Recycling- + Kläranlagen
- Masterplan
- Stadtentwicklung
- Städtebauliche Studien
- Forschung
- Jahr
- 2017
- Project Status
- Gebaut
- Bauherrschaft
- Makoko Communities, Union of Ogu Baales of Makoko, Makoko Neighborhood Hotspot Cooperative
- Team
- Fabienne Hoelzel, Yewande Morris, Abisola Ige, Saskia Niklas, Katerina Kalalova, Aro Ismaila, Mo Ajala, Yhusuph Lharminhur, Agwu James Chimaobi, Aniche Philesobie
- Structural Engineer
- Hermann Blumer
- Project financing partners
- Confédération suisse/ Embassy of Switzerland to Nigeria | Consulate General of the Federal Republic of Germany in Lagos
- Project implementation partner
- Heinrich Böll Foundation
- Project implementation partner
- Lagos State Ministry of Commerce, Industry and Cooperatives
- Biogas technology
- Eongratis Ltd., Lagos
- Project financing partner
- Consulate General of the Federal Republic of Germany in Lagos
- Project implementation partner
- SERAC












