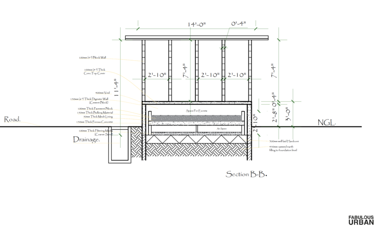
Infrastructure and Biofil Toilet Hubs
Since 2017, FABULOUS URBAN in close collaboration with the Nigerian Slum/ Informal Settlement Federation and Justice & Empowerment Initiatives (JEI) has been developing and constructing infrastructure and biofil composting hubs in ten urban slum communities in Lagos.
Funding: private (savings groups, foundations, and individual donors)
- Jahr
- 2018
- Project Status
- Gebaut
- Bauherrschaft
- Daramola Communities, Orisunmibare Communities, Itun-Agan Communities, Abete Ojora Communities, Ofin Communities, Sabokodji Communities, Baiyeku Communities
- Team
- Fabienne Hoelzel, Yewande Morris, Abisola Ige
- Community liaison and fundraising
- Justice & Empowerment Initiatives, Lagos and Port Harcourt (JEI)
- Project initiator, constructor and operator
- Nigerian Slum/ Informal Settlement Federation
- Fundraising platform
- I care for you, Switzerland
- Funding of project development
- Private donors, via "I care for you", Switzerland
- Funding of construction materials
- Selavip Foundation, Chile




