Wohnsiedlung Leutschenbach
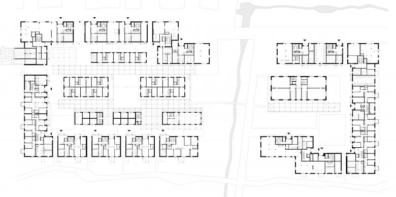
Mit dem Projekt «Wohnsiedlung Leutschenbach» wurden in Zürich-Seebach rund 400 neue städtische Wohnungen realisiert. Zusatznutzungen wie Kindergarten und Räume für Dienstleistungen und Gewerbe setzen wichtige Grundpfeiler für ein neues belebtes Zentrum mitten im wachsenden Quartier. Zwei zueinander ausgerichtete und leicht gestaffelte U-förmige Baukörper formen eine weitläufige Grossform im Massstab der Nachbarschaft. Im Inneren entsteht dagegen eine kleinteilige, für Quartier und Bewohnende nutzbare Welt, die einen menschlichen Massstab vermittelt und gut erfassbare, einladende Räume bietet. Grosszügige Verbindungen zu Leutschenpark und Riedgraben verankern das Ensemble als identitätsstiftenden Ort im dynamischen Quartier. Die Wohntypologien mit minimierten Erschliessungsflächen orientieren sich an den minimalen Flächenvorgaben der Wohnbauförderung und sind aus fundierter Auseinandersetzung mit der Aufgabenstellung des gemeinnützigen Wohnungsbaus entstanden.
- Jahr
- 2025
- Project Status
- Gebaut
- Bauherrschaft
- Amt für Hochbauten und Liegenschaftenverwaltung der Stadt Zürich
- Landschaftsarchitektur
- Atelier Oriri Landschaftsarchitekten GmbH
- Baumanagement
- ph-baumanagement AG
- Kunst und Bau
- Sarah Burger
- Kunst und Bau
- Iorio/Cuomo (Maria Iorio/Raphaël Cuomo)
- Fotografie
- Andreas Graber Photography

