Einfamilienhaus I

Einfamilienhaus I, Holzbau
Fotografia © Thomas Drexel

2005 - 2007 / Direktauftrag / Architektur: Iseppi-Kurath GmbH / Ivano Iseppi, Stefan Kurath / Bauherrschaft: privat

Rollstuhlgängiges und massgeschneidertes Einfamilienhaus für eine Familie in Graubünden.

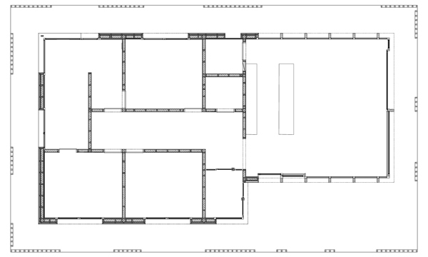
Einfamilienhaus I, Grundriss
Any
2007

Altres projectes per urbaNplus / Stefan Kurath / GmbH 

Baufeld 4 / Gestaltungsplan Aawiesen
Baufeld 1 / Gestaltungsplan Aawiesen
Badi Thusis / 1. Rang
Thusis, Switzerland
Bahnhofstrasse und Theaterplatz Luzern / 3. Rang
Luzern, Switzerland
Räume der Alltagserholung, Glatttal
Glattal, Switzerland