Lofthaus Bad-Cannstatt

Stuttgart, Germany
Fotografia © David Franck

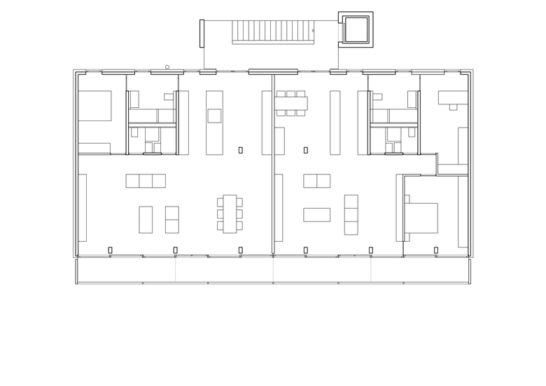
Das Lofthaus liegt in bevorzugter Aussichtslage an einem Südhang in Stuttgart Bad - Cannstatt. Als Zielgruppe für die Bewohner des Gebäudes wurden hochmobile kleine Familien, Singles oder die immer größer werdende Gruppe der ‚Jungen Alten' definiert. Innerhalb der offenen Grundrissfläche wurden im nördlichen Bereich kubische Service-Zellen eingestellt, die alle notwendigen Installationen beinhalten. Hier sind die nicht veränderbaren, höher installierten Räume wie Bad und WC vorgesehen. Die Küche kann an diese Zelle angelagert werden. Durch die Lage der Service-Zelle ist die Nutzung der nördlichen Grundrissfläche weitgehend für die Bereiche Schlafen, Kochen, Essen und Eingang definiert und gezont.

Der nach Süden orientierte Wohnbereich ist dagegen völlig flexibel und kann als Einraum belassen oder durch Trennwände in einzelne Räume unterteilt werden. Auf diese Weise sind vom Loft-Typ bis zur Wohnung mit fünf Räumen alle Grundrisstypen herstellbar. Vor der Südfassade werden in den Obergeschossen durchlaufend 1,5 Meter tiefe Balkone zur Erweiterung der Wohnfläche nach außen und als passive Schutzmaßnahme gegen hoch stehende Sonnenstände im Sommer angeordnet. Das Erdgeschoß erhält durch eine vorgelagerte Terrasse einen großzügigen Außenbezug. Das Angebot für die Mieter wird durch den Aufzug, die Tiefgarage, eine Dachterrasse und extern erbrachte Dienstleistungen vervollständigt.

Auftraggeber
nowmarketing München
Andreas Schweickhardt

Planungs- und Bauzeit
2004 - 2007

BGF
1.325 m²

BRI
3.938 m³

Baukosten
1.200.000 €

Tragwerksplanung
Michael Fleck, Schorzberg

Haustechnik
Wilhelm Schetter GmbH
Kernen

Elektroplanung
Truckenmüller & Partner
Stuttgart

Fotografia © David Franck
Fotografia © David Franck
Fotografia © David Franck
Fotografia © David Franck
Fotografia © David Franck
Grundriss
Dibuix © SFA
Schnitt
Dibuix © SFA

Altres projectes per SFA Simon Freie Architekten BDA 

Betriebshof und Städtebauliche Neuordnung Wingertsbuckel
Mannheim
Kulturzentrum Uhingen
Uhingen, Germany
Forschungsgebäude für Pharmazie
Saarbrücken, Germany
Kindertagesstätte Limespark
Kindertagesstätte und Jugendzentrum
Stuttgart, Germany