Haus P
Neubau eines Einfamilienhauses in Massivbauweise. Die Gebäudestruktur sollte sich an eine sich verändernde Familienstruktur anpassen können.
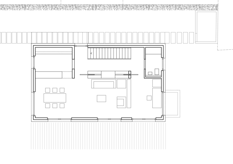
Im Erdgeschoß wurden im Norden der Zugangsbereich mit Treppe, ein WC mit Putzschrank und die Küche angeordnet. Der südliche Gebäudeteil wurde ohne tragende Wände oder Stützen geplant und wird als flexibler Wohn- und Eßbereich genutzt.
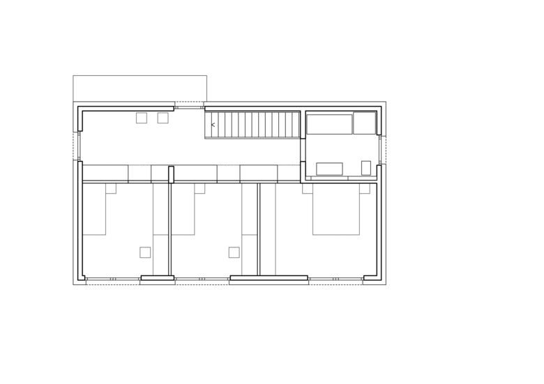
Im Obergeschoß wurde der Flur als zusätzliches Zimmer für die Kinder in Form eines Spielflures ausgebildet. Vom Flur aus zugängliche Schrankwände bilden den Raumteiler zu den angrenzenden Kinderzimmern und dem Eltern – Schlafzimmer.
Alle Zimmerwände im Obergeschoss wurden in nichttragender Trockenbauweise hergestellt. Sie können nachträglich verändert oder entfernt werden.
Bauherr
Privat
Ausführung
09 / 2007 – 07 / 2008
BGF
257 m²
BRI
753 m³
Baukosten
340.000 € brutto
Fotografie
Brigida González








