Erlebnismuseum Perlmutter Adorf/Vogtland
Das neue, weltweit einzigartige Museum widmet sich dem kulturellen Erbe der Flussperlmuschel, der Perlenfischerei und der Herstellung von Perlmutterwaren. Sein Erscheinungsbild ist aus dem Aufbau der Muschel abgeleitet: raue Schale und kostbares Inneres stehen im Kontrast und bilden dennoch eine Einheit. Die windschief verformte Gebäudehülle transformiert das Bild der Muschelschale und setzt ein Signal in den öffentlichen Raum. Über die Betonschale fließt kontinuierlich Wasser in einen Brunnen und verweist so auf fließendes Wasser als Lebensgrundlage der Muschel.
Adorf kämpft mit den typischen Problemen ländlicher Regionen: Überalterung und Rückgang der Bevölkerung, Attraktivitätsverlust als Wohn- und Arbeitsort und eine daraus resultierende schwierige wirtschaftliche Lage. Die Stadt stemmt sich diesem Wandel mit Verbesserungen von Infrastruktur und Bildungsangeboten entgegen. Das neue Perlmutter Museum stellt ein Leuchtturmprojekt für Ort und Region dar, das Identifikationsobjekt und Motor einer positiven Entwicklung sein soll. An keinem anderen Ort der Welt existiert ein derartiges Museum zu Flussperlmuschel, Perlenfischerei und Perlmutterwarenherstellung, was Adorf als attraktives und anziehendes Alleinstellungsmerkmal für die aktive Gestaltung des Strukturwandels nutzen möchte.
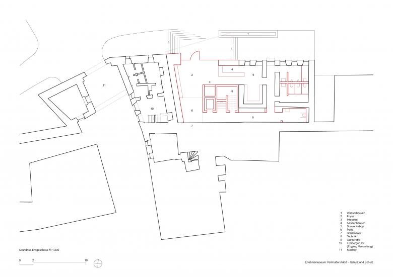
Das Grundstück des Neubaus war eine Brache ohne Qualität im Erscheinungsbild oder für den Aufenthalt der Menschen. Die einbezogenen Altbauten waren teilweise ungenutzt leerstehend und drohten zu verfallen. Durch deren Erhalt und Weiternutzung wird die örtliche Situation stabilisiert und gestärkt. Mit der Intervention entsteht ein lebendiger Ort, der sowohl die unmittelbare Umgebung als auch durch die Nähe zu Marktplatz und Rathaus die gesamte Innenstadt aufwertet. Die Integration der historischen Stadtmauer in den Patio des Museums macht die Geschichte der Stadt erlebbar. Der rückwärtige grüne Hof steigert in Verbindung mit einem angedachten Café die Aufenthaltsqualität im Freien.
Der Neubau verbindet die bestehenden Gebäude zu einem neuen Museumskomplex für die Bewahrung, Erforschung und Vermittlung des kulturellen Erbes Perlmutter. Sein Erscheinungsbild ist aus dem Aufbau der Muschel abgeleitet: raue Schale und kostbares Inneres stehen im Kontrast und bilden dennoch eine Einheit. Die windschief verformte Gebäudehülle transformiert das Bild der Muschelschale und setzt ein Signal in den öffentlichen Raum. Über die Betonschale fließt kontinuierlich Wasser in einen Brunnen und verweist so auf fließendes Wasser als Lebensgrundlage der Muschel.
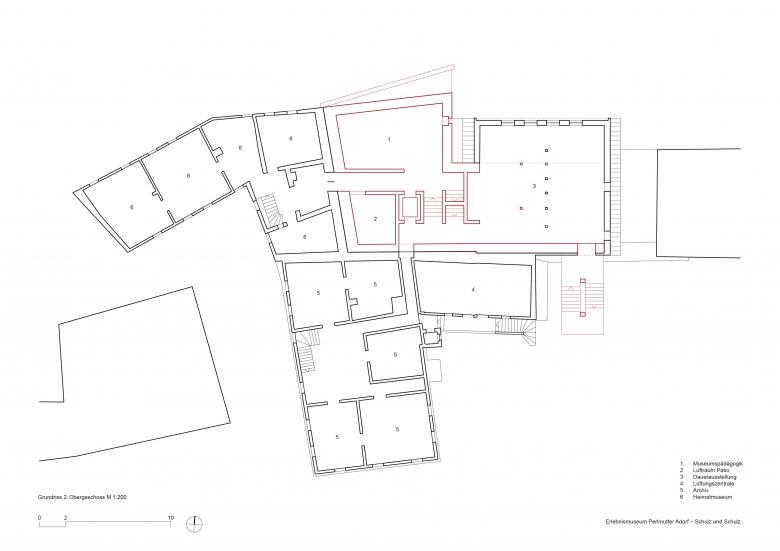
Die Altbauten, die rund vier Fünftel der Gesamtfläche ausmachen, werden durch die Verbindung mit dem Neubau erhalten und langfristig sinnvoll weitergenutzt. Der Neubau hat keinen Keller, um den Einsatz von Beton zu reduzieren. Die Räume der Gebäudetechnik befinden sich in einem der angrenzenden Altbauten. Die gekrümmte Fassade besteht aus einer materialminierten Beton-Hyparschale. Die Tragkonstruktion im Bestand wird mit Vollholz aus heimischen Wäldern verstärkt, ebenso werden für Fenster und Möbel heimische Hölzer verwendet.
Auf dem Boden liegt Naturstein aus einem nahegelegenen Steinbruch. Heizung und Kühlung erfolgen mittels Sole-Wasser-Wärmepumpe, die mit Solarstrom betrieben wird. Die zentrale Lüftung arbeitet mit Wärmerückgewinnung.
Der Neubau ist sehr kompakt mit geringem umbauten Raum, weil die Geschosshöhen der Altbauten übernommen werden. Der hohe Wärmedämmstandard des Neubaus und der innenseitig gedämmten Hülle der Altbauten sowie die wenigen Öffnungen in den Fassaden sorgen für geringe Wärmeverluste, optimierten solaren Eintrag und ein für die Ausstellungsstücke wichtiges konstantes Klima im Inneren. Die unverkleidete Massivkonstruktion des Neubaus sowie die eingesetzten Lehmziegel und Lehmputzflächen im Bestand wirken als thermische Masse und regulieren die Behaglichkeit und Luftfeuchte im Inneren. Die ständige Bewässerung der Fassade mit Regenwasser verbessert im Sommer das Mikroklima des Ortes durch das Prinzip der Verdunstungskälte.
Mit der Teilbegrünung des rückwärtigen Hofes und dem sich auf der bewässerten Fassade bildenden Moos entstehen Verbesserungen der ökologischen Situation des Standortes, beispielsweise in Form neuer Lebensräume für Insekten. Zudem ist das Museum wichtig für den Naturschutz in der Region. Durch die Forschung, Vermittlung und Aufklärung über das Lebewesen Flussperlmuschel und seinen Lebensraum in der Natur trägt das Museum dazu bei, die Naturschutzprojekte in der Region zu unterstützen, die sich mit der Wiederansiedlung der Muscheln in den umgebenden Wäldern beschäftigen. Es ist eine wesentliche Aufgabe des Museums, die Bevölkerung für die heimische Flussperlmuschel zu sensibilisieren, um deren Fortbestand zu sichern.
- Any
- 2025
- Project Status
- Construït
- Client
- Stadt Adorf/Vogtland, Bürgermeister Rico Schmidt
- Equip
- Christoph Untch, Christian Wischalla, Jana Unbehauen, Sarah Ahner, Julian Lengert, Elisa Thänert
- Architekten- und Ingenieurleistungen LPH 6, 7 und 8
- Neumann Architekten + Generalplaner GmbH, D-08523 Plauen
- Tragwerksplanung
- Mathes Beratende Ingenieure GmbH, D-09112 Chemnitz
- Lichtplanung Patio
- ANDRES + PARTNER Partnerschaft mbB, D-22419 Hamburg
- HLS-Planung
- Dr. Schott und Partner GmbH, D-08056 Zwickau
- Elektrotechnik-Planung
- Ingenieurgesellschaft Lachmann-Dominok mbH, D-08606 Oelsnitz/Vogtland
- Thermische Bauphysik, Wärmeschutz, Energiebilanzierung
- GWT-TUD GmbH, D-01067 Dresden
- Bauakustik, Raumakustik, Schallimmission
- Akustik Bureau Dresden, D-01219 Dresden
- Freianlagen
- Öko-Plan Bauplanung GmbH, D-08523 Plauen
- Ausstellungsplanung
- KOCMOC.NET GmbH, D-04103 Leipzig



















