Rathaus Garbsen

Garbsen, Germany
Fotografia © Klemens Ortmeyer

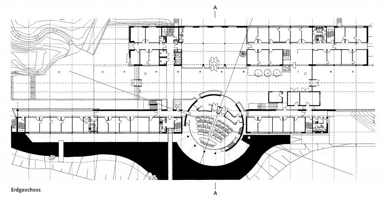
Das Rathaus ist Auftakt sowie räumliches Rückgrat des neuen Stadtquartiers. Eine zwischen zwei massiven Baukörpern stehende gläserne Halle bildet das Herz des Gebäudes. Sie wird zu einem urbanen Platz mit eingestellten Baukörpern, Brücken, Plätzen und Wegen und führt den öffentlichen Raum durch das Gebäude hindurch.

Zur vielbefahrenen Berenbosteler Straße wird die Halle durch einen sechsgeschossigen Riegel abgeschirmt. Er beherbergt den Hauptteil der Verwaltung. Ihm gegenüberliegend flankieren zwei langgestreckte Riegel eine Rotunde, in der sich der zweigeschossige große und der darüberliegende kleine Ratssaal sowie eine tine im Basisgeschoss befinden.

Fotografia © Klemens Ortmeyer
Fotografia © Klemens Ortmeyer
Fotografia © Klemens Ortmeyer
Fotografia © Klemens Ortmeyer
Fotografia © Klemens Ortmeyer
Fotografia © Klemens Ortmeyer
Fotografia © Klemens Ortmeyer
Fotografia © Klemens Ortmeyer
Fotografia © S+S
Dibuix © S+S
Dibuix © S+S
Any
1998

Altres projectes per Schneider + Sendelbach 

Sanierung und Erweiterung der Grundschule Heidberg und Einrichtung zum Ganztagsbetrieb
Braunschweig, Germany
BMW Training Center Shanghai
Shanghai, China
Studentisches Wohnen am Kläperberg
Hannover, Germany
Troya Müzesi - Museum für Troja
Çanakkale, Turkey
Landesrechnungshof des Landes Niedersachsens
Hildesheim, Germany