Biozentrum Univeristät zu Köln, 2. BA

Köln, Germany
Fotografia © Klemenz Ormeyer

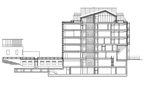
Im biowissenschaftlichen Zentrum sind die Institute für Botanik, Zoologie und Entwicklungsbiologie angesiedelt. Der kompakte Baukörper fügt sich in die vorhandene orthogonale städtebauliche Struktur.

Der 6-geschossige Neubau ist in den Regelgeschossen als 5-Bund ausgebildet. Flexibel nutzbare Labor- und Büroeinheiten sind nach Arbeitsgruppen unterteilt, begrünte Zonen fungieren als kommunikative Bewegungsflächen. Im Eingangsgeschoß befinden sich die öffentlichen Nutzungen wie Hörsäle, Praktikumsräume und Bibliothek. Vertikale Lufträume verbinden öffentlichen Bereiche mit den Institutsebenen. Das Dachgewächshaus verzahnt sich in der Vertikalen mit der inneren Erschließungsfuge.

Zu den betreuten Umstrukturierungsmaßnahmen auf dem ehemaligen Augusta-Krankenhaus-Gelände gehören außerdem der Umbau und die Sanierung des großen Hörsaals (Fachbereich Geologie), der Neubau eines Freilandgewächshauses mit Freilandversuchsflächen, Umbau und Erweiterung des sogenannten Südbaus (Fachbereich Geographie), sowie der Neubau des zentralen Gefahrstofflagers.

Fotografia © Klemenz Ormeyer
Fotografia © Klemenz Ormeyer
Fotografia © Klemenz Ormeyer
Fotografia © Klemenz Ormeyer
Fotografia © Klemenz Ormeyer
Fotografia © Klemenz Ormeyer
Fotografia © Klemenz Ormeyer
Dibuix © S+S
Dibuix © S+S
Dibuix © S+S
Fotografia © S+S
Any
2012

Altres projectes per Schneider + Sendelbach 

Sanierung und Erweiterung der Grundschule Heidberg und Einrichtung zum Ganztagsbetrieb
Braunschweig, Germany
BMW Training Center Shanghai
Shanghai, China
Studentisches Wohnen am Kläperberg
Hannover, Germany
Troya Müzesi - Museum für Troja
Çanakkale, Turkey
Landesrechnungshof des Landes Niedersachsens
Hildesheim, Germany