Umbau Ebligen

Oberried, Switzerland
Fotografia © Ruedi Walti

in Zusammenarbeit mit alma maki Architekten, Basel (www.almamaki.ch).

In einem alten Holzstrickhaus am Brienzersee wollte die Bauschaft eine Ferienwohnung umbauen lassen. Bei Umbauten in den 80er Jahren wurden erhebliche Teile der ursprünglichen Substanz zerstört oder unsachgemäss ergänzt.

Die Nord-Süd Ausrichtung in Verbindung mit den kleinen Fenstern und einer Raumhöhe von nur 2 Metern liess vor allem die Räume nach Norden, zum Hang hin, eng und dunkel wirken. Ausblicke beschränken sich auf wenige Meter. Im Gegensatz dazu ist der nach Süden ausgerichtete Hausteil hell und profitiert vom reizvollen Ausblick auf den See und die umliegende Berglandschaft. Dieser Gegensatz war Basis der Entwurfsidee, die Räume in ihren jeweiligen atmosphärischen Qualitäten zu steigern. Der niedrige dunkle Raum wird zu einem Rückzugsort nach innen, einer introvertierten behaglichen Höhle. Im Zusammenspiel mit den dunkelbraun lasierten, aus der Umgebung vertrauten Holzoberflächen entsteht so ein Ort, an dem das unmittelbare Nebeneinander von Feuer und Wasser archaische Assoziationen hervorruft. Das neue grosse Fenster mit Sitznische schafft dabei einen überraschenden Blick auf den nun fast japanisch anmutenden Garten.

Im Gegensatz dazu ermöglichen die hellen, luftigen Räume klare Gedanken und den Weitblick über den See. Vorgefundene, mehrlagige Tapetenreste wurden durch die präzise Bearbeitung und Freistellung zu kleinen autarken Kunstwerken umgewandelt, zu inszenierten Zeugen der Vergangenheit.

Fotografia © ARGE lilitt bollinger studio & alma maki gmbh
Fotografia © Ruedi Walti
Fotografia © Ruedi Walti
Fotografia © Ruedi Walti
Fotografia © ARGE lilitt bollinger studio & alma maki gmbh
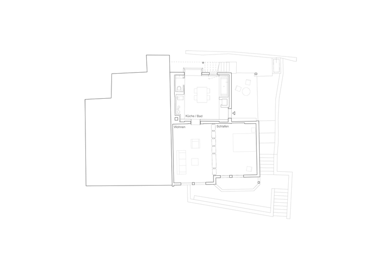
Dibuix © ARGE lilitt bollinger studio & alma maki gmbh
Architects
lilitt bollinger studio gmbh
Any
2014

Projectes relacionats 

  • HOMAG Campus Schopfloch
    blocher partners
  • Penthouse FR
    MR Design Studio | Product and Interior design
  • Rodari Primary School
    C+S Architects
  • Rosenberghalde
    freiraumarchitektur
  • Fusion
    SNOW ARCHITEKTUR

Revista 

Altres projectes per lilitt bollinger studio gmbh 

Umbau Wohnhaus in Obstalden
Obstalden, Switzerland
Umbau Kirschlager
Nuglar, Switzerland
Wohnatelierhaus Altes Weinlager
Nuglar, Switzerland