Wettkampfsporthalle am Platz der Deutschen Einheit
Wiesbaden, Germany
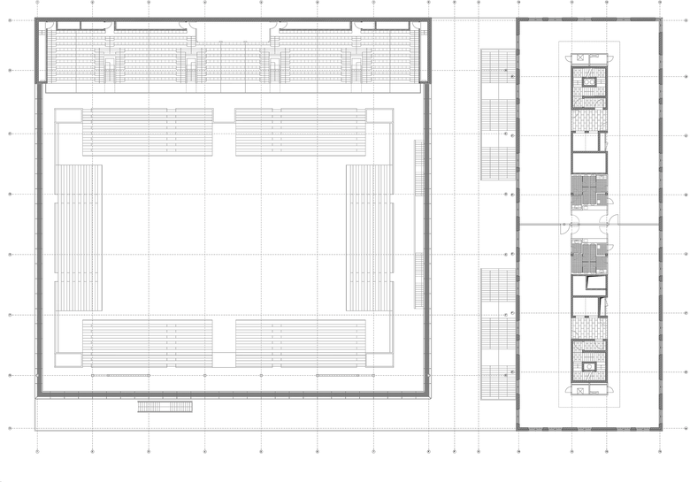
Mit der Neuordnung des Quartiers wird die Intention verfolgt, die jeweiligen Identitäten und Qualitäten der umliegenden Räume herauszuarbeiten und städtebaulich zu stärken. Die programmatischen Vorgaben bedingen eine hybride dreiteilige Baukörperkonstellation, bestehend aus Wettkampfsporthalle, Einzelhandelsflächen und einem Bürohaus, deren spezifische Ausformulierungen sich aus stadträumlichen Abhängigkeiten und funktionalen Zusammenhängen ergeben.
Die neue Sporthalle ist sowohl inhaltlich als auch städtebaulich in engem Zusammenhang mit der bestehenden Elly-Heuss-Schule zu betrachten, welche nun in die erste Reihe tritt und mit ihrem kräftigen Kopf- und Eingangsgebäude ein stadträumlich prägendes Element des Platzes der Deutschen Einheit bildet. Die geplante Ausbildung als Wettkampfstätte für sportliche Veranstaltungen mit entsprechenden Tribünenanlagen erfordert eine räumliche Verknüpfung mit dem Platz und eine über das übliche Maß hinausgehende Ausstrahlung des Sportgeschehens in diesen neuen Stadtraum hinein. Dies wird mit einer großzügigen Öffnung der Sporthalle zum Platz der Deutschen Einheit hin erreicht. Einzelhandelsflächen und Gastronomieeinrichtungen wie Cafés und Restaurants befinden sich in der Erdgeschossebene.
Wettbewerb
Begrenzt offener Realisierungswettbewerb mit städtebaulichem Ideenteil 2008 -
1. Preis
BGF
20.500 m²
BRI
106.300 m³
LPH 2-5
- Architects
- SCHEEL WETZEL ARCHITEKTEN
- Any
- 2014
- Client
- Landeshauptstadt Wiesbaden
- Landschaftsarchitekt
- Weidinger Landschaftsarchitekten
- Projektentwicklung und Generalplanung
- Firmengruppe Max Bögl
- Tragwerksplanung
- R&P RUFFERT Ingenieurgesellschaft mbH Beratende Ingenieure















