Neubau Schulcampus Oldenburg i.H.
Perlenkette im Stadtgefüge
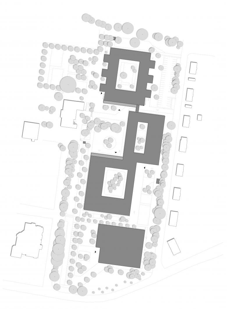
Aufgereiht wie an einer bewegten Perlenkette folgen die Neubauten für das Gymnasium und die Gemeinschaftsschule in Oldenburg der Typologie des aus den 1960er Jahre stammenden Hauptgebäudes: Ein zweigeschossiger roter Klinkerbau, der seinen introvertierten Charakter durch einen großzügigen Innenhof erhält und durch offene, klare Grundrisse überzeugt.
Wo bisher die Schülerinnen und Schüler des Gymnasiums auf dem Sportplatz zu Höchstleistungen angespornt wurden, entstanden drei Neubauten: Ein gemeinsamer Fachklassentrakt, die neu angesiedelte Gemeinschaftsschule und eine Sporthalle am Kopf des Grundstücks. Trotz der räumlichen Zusammenlegung bleibt die Eigenständigkeit beider Schulen durch eine konsequente funktionale Trennung erhalten. Dank lichtdurchfluteter Fach- und Klassenräume und multifunktionaler Erschließungszonen mit individuellem Mobiliar, werden hier nicht mehr ausschließlich sportliche Bestleistungen erbracht, sondern ebenso gestalterische oder mathematische. Es werden nicht nur Schulfeste in der großzügigen Halle der Gemeinschaftsschule stattfinden können oder Konzerte in der bestehenden Aula, sondern auch öffentliche Veranstaltungen der Stadt in der bis zu 1.000 Gäste fassenden Sporthalle. Das gesamte städtische Umfeld – vom Stadtpark bis zum Tennisplatz – erhält durch den Schulcampus neue Impulse!
- Any
- 2025
- Project Status
- Construït










