Schulhaus Dorf
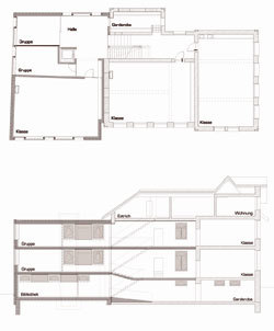
Alt- und Neubau werden unter gegenseitigem Respekt zusammengefügt. Von Aussen setzt sich der Anbau - trotz subtilen Gemeinsamkeiten wie Traufhöhe und Fenstergewände - selbstbewusst vom bestehenden Schulhaus ab. Im Innern jedoch verbinden sich Alt und Neu zu einer Einheit von unerwarteter Grosszügigkeit.
Das Pausenareal ist eingespannt zwischen einer hangseitigen Stützmauer und einer talseitigen Hecke. In diese sind organisch geformte Pavillons so eingefügt, dass sie nach einiger Zeit einwachsen werden. Der gedeckte Velounterstand ist in die Stützmauer integriert.
- Any
- 2005
- Client
- Einwohnergemeinde Rehetobel AR
- Aufgabe
- Erweiterung / Umbau
- Wettbewerb
- 2001, 1. Rang
- Realisierung
- 2003-2005
- Auszeichnung
- Gutes Bauen Ostschweiz 2001-2005






