BANCA TEMA Uffici di Promozione Finanziaria
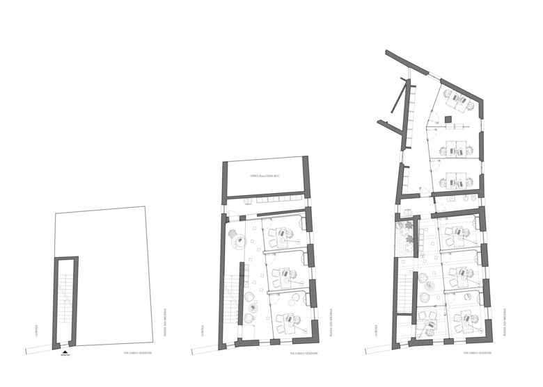
Realizzazione di sette uffici distribuiti sui due piani e con ingresso dalla medesima via. Definizione degli spazi mediante setti in Legnopan Wallcovering e pareti vetrate in continuità visiva con le aree di attesa, accoglienza e distribuzione.
Interventi di rifinitura dei prospetti, sostituzione delle finestre, delle soglie e imbotti esterne.
Al piano secondo realizzazione di un giardino d’inverno in corrispondenza della precedente veranda.
Brendizzazione dei prospetti con logo e insegne BancaTEMA BCC.
Progettazione di nuova copertura: tetto a falde con struttura in legno a vista.
- Client
- Banca Tema




