CNC residencial
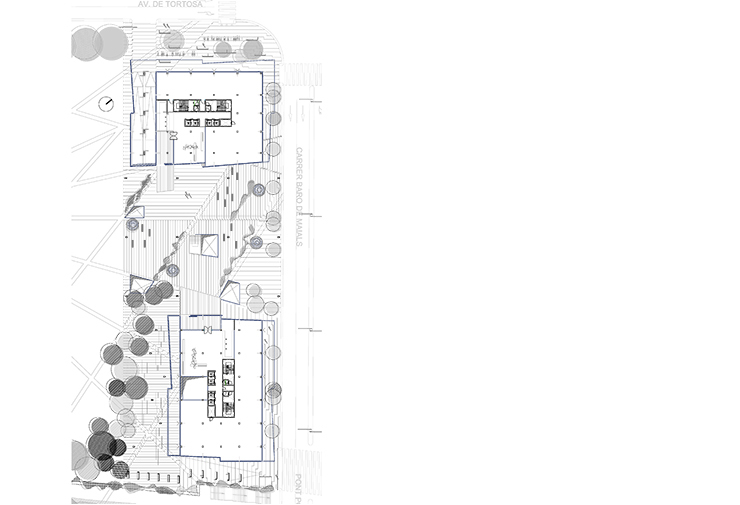
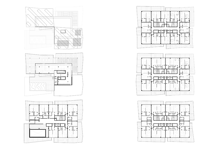
El concurs preveia 27.290,31m2 de sostre sobre rasant a una parcel•la municipal, fent façana amb el Riu Segre i amb el futur edifici del Palau de Congressos de la Llotja. L’avantprojecte s’adequa a la variant de dues torres, una de PB+15 (A) i l’altra de PB+21 (B), prevista com alternativa de regulació a la modificació del Pla General de Lleida. S’aposta per la solució de dos volums verticals per ser la que permet una millor adequació a l’entorn edificat i al paisatge. A més, resulta molt més racional el subministrament de serveis en solucions d’alta densitat. Proposem un tractament de l’espai urbà conjunt i continu amb la urbanització de l’entorn de l’edifici de la Llotja, fent arribar la geometria de la pavimentació fins a la vorera del carrer Baró de Maials. Caldrà, però, a l’arribar a la zona residencial objecte del concurs, introduir un ordre secundari que permeti organitzar els accessos als habitatges, que doti l’àrea de zones d’esbarjo i mobiliari urbà, elements tractats a una escala més humana. Es planteja un accés de serveis per l’avinguda de Tortosa entre el Palau de Congressos i les torres. En aquest punt també es proposa l’accés a l’aparcament, inclòs dins el volum edificat. La torre A es fixa aliniada amb la façana del futur Palau de Congressos, solucionant la continuïtat espaial i urbana de l’avinguda de Tortosa. La torre B es col•loca com a fita d’accés a la ciutat i de relació amb el paisatge, al completar la cantonada del Carrer Baró de Maials amb el mur de Contenció del Riu Segre a l’inici del Pont que el creua. Es formalitza així la imatge més rellevant i suggestiva per a la porta de la ciutat just creuar el riu. Tant la ubicació com l’alçada de l’edificació formaran un punt privilegiat i de referència pel creixement de Lleida. L’envolvent caracteritza la imatge. Les terrasses perimetrals s’interrompen al punt mig de cada façana amb amplades lleugerament diferents a cada planta per tal de formalitzar unes escletxes irregulars i verticals a tota l’alçada, formant quatre unitats formals a cada edifici. Unes lleugeres oscil•lacions dels plans dels voladius, confeccionen la imatge de les dues torres, es pretén que es percebin com a dos conjunts de quatre subtorres cada una, molt més esveltes i de traçat delicat. Les lleugeres oscil•lacions representen una mena de diàleg entre els edificis que el vianant entendrà a través de les infinites siluetes que proposen els perfils dels edificis. El joc de plans triangulars que composen cada façana dóna un ordre que supera l’horitzontalitat de les plantes i aporta la dimensió urbana que es sol•licita en una construcció d’aquestes característiques. Els diferents elements de filtre solar actuen com a reguladors del confort climàtic a la vegada que aporten variabilitat a la façana. El conjunt residencial es planteja amb apartaments d’entre 45 i 75 m2 de 1 i 2 habitacions. Tots disposen d’una amplia terrassa que dóna el component de relació amb l’exterior i esdevé l’element diferenciador d’una torre d’oficines, a la vegada que funciona com a sistema passiu de control ambiental. El concepte diàfan de la distribució plantejada, el confort previst dels interiors, la fàcil accessibilitat, l’amplia urbanització de la base dels habitatges amb una zona de jocs per a infants, la zona comú amb esbarjo i well-ness i la zona comercial o d’oficines a planta baixa, promouen la convivència d’un ampli ventall de ciutadans.
- Project Status
- En construcció









