Dreifachsporthalle Schulanlage Schadau

Thun, Switzerland

Die neue Sporthalle Schadau ergänzt die Bauten des gleichnamigen Gymnasiums in Thun. Der neue Gebäudekörper wird direkt an der stark befahrenen Frutigenstrasse, als Abschluss der Wohnbauten platziert. Über das Absenken der Halle und die filigrane Materialisierung fügt sich der grosse Neubau harmonisch in das kleinmassstäbliche Wohnquartier ein. Der Neubau wird ab der Oberkante des Terrains aus Holz erstellt und mit einer feingliedrigen Douglasien-Fassade bekleidet, welche im Laufe der Zeit natürlich verwittert. Durch die grosszügigen Verglasungen und die Repetition der einzelnen Elemente erhält der Hallenraum eine ruhige, lichtdurchflutete Stimmung. Prägende Materialien sind helles Fichtenholz im Zusammenspiel mit Sichtbeton und einem lindengrünen Sportboden.

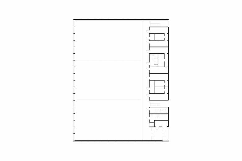
Im Innern wird mit einer kompakten Organisation des Grundrisses eine logische, kurze Wegführung erreicht. Der Besucher betritt das Gebäude lateral und sieht auf der langen Galerie stehend in die abgesenkte Halle. Sämtliche Räume werden direkt über die Galerie und die zwei Treppen erschlossen.

2008–2011

Bauherrschaft : Amt für Gebäude und Grundstücke des Kantons Bern
Mitarbeit: Andreas Schmied, Jessica Iskenius, Marc Haller, Roger Gut, Christian Gut

Any
2011

Altres projectes per Haller Gut 

Erweiterung Schulanlage Hofmatt
Gelterkinden, Switzerland
Sanierung und Erweiterung Schulanlage
Wangen an der Aare, Switzerland
Sanierung und Erweiterung Evivo
Burgdorf, Switzerland
Schulhaus Aarberg
Aarberg, Switzerland
Sanierung Schulanlage Höheweg
Langnau, Switzerland