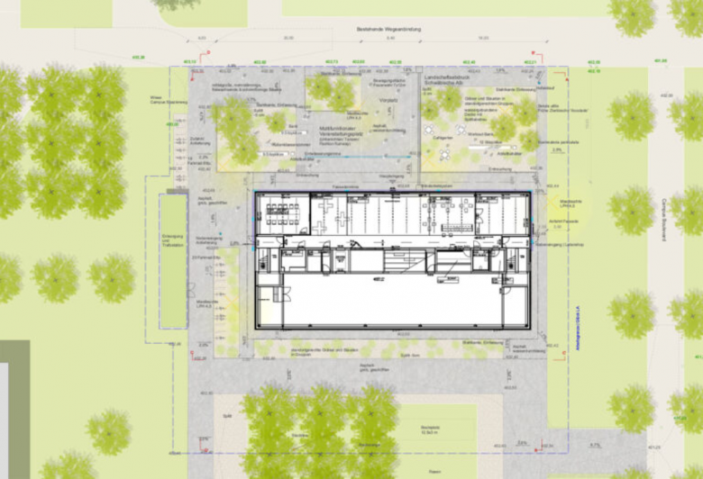
Texoversum
Auf dem Campus der Hochschule in Reutlingen nimmt unsere Freianlagenplanung in konzeptioneller Weise den Bezug zum Landschaftsraum der nahen Schwäbischen Alb auf. Abstrahierte Landschaftsabdrücke in Form einfacher rechteckiger Geometrien sind in den Vorplatz des Texoversums eingelegt.
Mit der Verwendung von Kalksplitt aus weißem Jura der Schwäbischen Alb und Steinbänken aus Gauinger Travertin vom nahegelegenen Steinbruch übernehmen wir die regionale Materialität im Projekt. Mit großflächig verwendetem wasserdurchlässigem Rasenfugenpflaster wird der Versiegelungsgrad der Freianlagen auf ein Mindestmaß reduziert und so ein möglichst hoher Versickerungsgrad des Oberflächenwassers erreicht.
Gemischte Baumpflanzungen aus Hochstämmen und mehrstämmigen Bäumen bilden „Grünen Schatten“ auf dem Vorplatz. Im Konzept integrierte Fitnessgeräte laden die Mitarbeitenden des Texoversums zu aktiven Pausen ein. Die Steinbänke sind Treffpunkte und Ruheorte auf dem Vorplatz und verbinden diesen mit dem Campus der Reutlinger Hochschule. Stauden und Gräser in den Landschaftsabdrücken erhöhen die Biodiversität des Projekts.
- Any
- 2023
- Partner
- Allmann Sattler Wappner . Architekten GmbH, Kubus 360 GmbH
- Bearbeitungszeit
- 2020 – 2023



