Gesamtrenovation Mehrfamilienhaus

Fotografia © Felix Huber Architekten

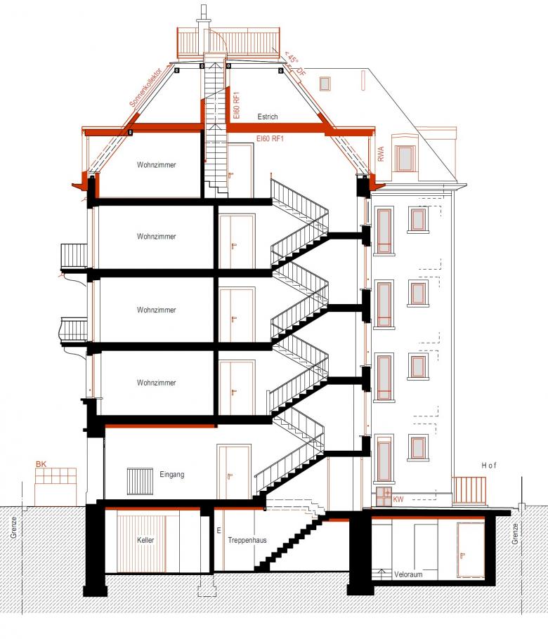
Mehrfamilienhaus aus dem späten 19. Jahrhundert.
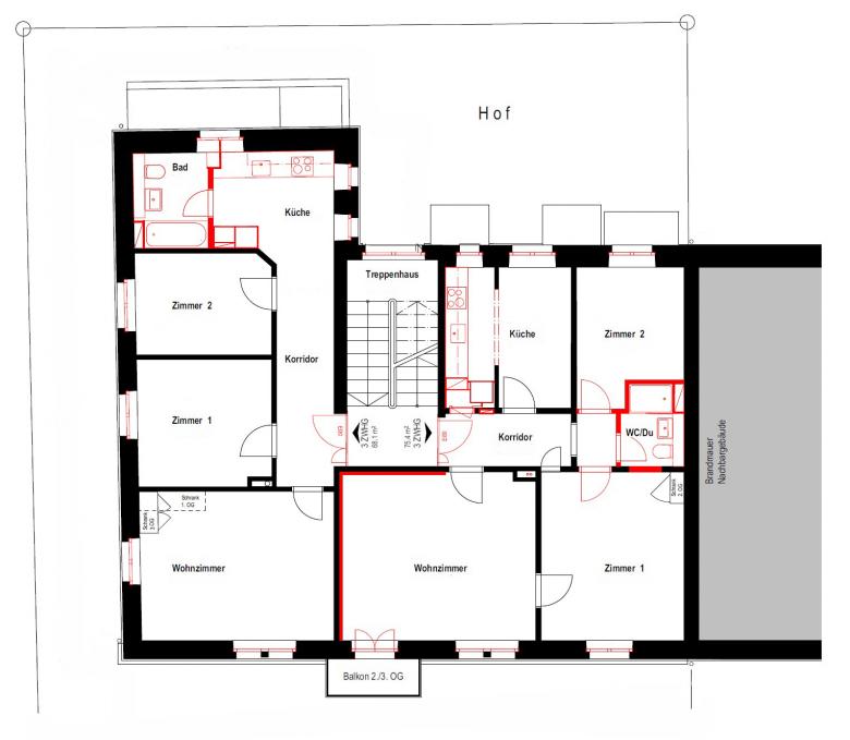
Gesamtrenovation mit Grundrissanpassungen.
Neues Dach in Naturschiefer und neuer Dachterrasse.
Energetische sowie brandschutztechnische Sanierung.

Fotografia © Felix Huber Architekten
Fotografia © Felix Huber Architekten
Fotografia © Felix Huber Architekten
Fotografia © Felix Huber Architekten
Any
2021
Project Status
Construït

Altres projectes per Felix Huber Architekten 

Renovation Alters- und Pflegezentrum
Wald ZH, Switzerland
Umnutzung der Trotte zu Wohnhaus (Denkmalschutz-Objekt)
Wädenswil, Switzerland
Mehrfamilienhaus Kirchgasse, Zustandsanalyse
Wohn- und Geschäftshaus
Zürich-Seefeld, Switzerland
Renovation und Umbau Mehrfamilienhaus
Zürich-Seefeld, Switzerland