Geschützte Werkstätte AWZ
Das Quartier in Kleindöttigen ist geprägt durch eine heterogene Bebauung, bestehend aus mehrgeschossigen Wohnbauten und 1- bis 2-geschossige Infrastrukturbauten. Der Neubau steht am Rande dieses Gevierts, markiert den Übergang zur Naherholungszone entlang der Aare und gliedert sich als Werk und Arbeitsort in die Struktur der flachen Infrastrukturbauten ein. Sowohl die Proportionierung als auch der Ausdruck des Neubaus schafft einen Kontrapunkt zum bestehenden Wohnheim und will den Ortswechsel vom Wohnen zum Arbeiten als Bereicherung des Alltags erlebbar machen.
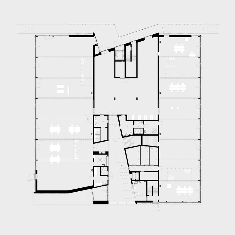
Die Dreiteilung des Baukörpers bildet die Grundlage für das statische und strukturelle Konzept. Der Mittlere Teilbereich mit den „dienenden“ Räumen ist als aussteifender Betonkern konzipiert und bildet das Rückgrat der Anlage. Beidseitig daran angegliedert sind die Werkhallen als Leichtbau in Stahl und Holoribblech vorgesehen. Die Nutzung der Haupträume ist auf zwei Geschossen angeordnet. Im Erdgeschoss befinden sich die Werkhallen mit der Anlieferung und dem Empfang, im Obergeschoss die Schulungs- und Gemeinschaftsräume mit den Beschäftigungsplätzen. Durch diese einfache Anordnung werden die vertikalen Bewegungen im Hause gering gehalten und lassen eine einfache Orientierung im Hause zu.
Der innere Aufbau der drei Zonen ist auch im Ausdruck nach Aussen ablesbar; Schrägdächer zeichnen die Struktur spielerisch nach, teilweise als schüzender Giebel, teilweise als aufgeklappter Shed oder als bewegte Dachlandschaft. Diese Verschiedenartigkeit der Dächer schafft auf jede Seite hin einen spezifischen Ausdruck und eine einprägsame Zeichenhaftigkeit.
- Any
- 2012-2015
- Equip
- Hanna Åkerström, Yvonne Meier, Dogan Kadah, Alexander Forslund









