casa AG

Photo © simone bossi

L'appartamento è parte di un edificio costruito verso la fine del Settecento nella zona nord della città di Varese. L'impianto originario ha saputo valorizzare le qualità del contesto ambientale, instaurando un dialogo continuo tra intorno e costruito. Già dimora di una ricca famiglia milanese il complesso è stato oggetto di una ristrutturazione con la conseguente suddivisione in singoli appartamenti.

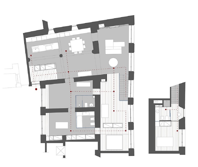
La lettura e l'analisi delle caratteristiche costruttive dell'appartamento, articolato in un piano terra oltre a una piccola porzione seminterrata, sono state determinanti per identificare le soluzioni progettuali proposte.

Il piano principale ha una forma riconducibile al quadrato, seppur irregolare. La presenza di una mangiatoia in pietra ci ricorda la sua destinazione originaria. Spessi muri suddividono lo spazio in modo per lo più casuale, volte a botte e a crociera si affiancano a soffitti in travi di legno.

Lo spazio presenta un duplice rapporto tra interno ed esterno. Ampie aperture rettangolari si aprono verso una corte, una luce pomeridiana le attraversa.

Una sequenza di cinque finestre ad arco caratterizza l'affaccio nord/est. La vista si spinge fino alle alture della città di Varese. La luce, incidente nelle prime ore della mattina, si ammorbidisce durante la giornata.

La volontà di valorizzare l'esistente ci ha suggerito l'approccio al progetto. L'apparente spontaneità dello spazio è stata la nostra linea guida. Volevamo evidenziare la struttura originaria della costruzione, i suoi materiali e la sua irregolarità. L'articolazione dello spazio interno, necessaria per soddisfare le esigenze della nuova destinazione, avviene solo tramite interventi puntuali e materiale selezionati; il vetro per delimitare le aree dei bagni, il legno come volume di contenimento per separare l’ingresso e schermare la zona letto.

La massa muraria rimane libera da interferenze; porte a bilico chiudono i passaggi già esistenti tra i vari ambienti.

La pavimentazione in cemento si alterna al legno evidenziando la differenza originaria di quota dei piani.

La scelta di integrare gli elementi di contenimento con la muratura ci ha permesso di valorizzare il vuoto interno e la sua variabilità di luci e ombre durante l'arco del giorno.

Le pareti in vetro satinato portano all'interno dei bagni una luce diffusa che esalta le sintetiche scelte di arredo e diventano esse stesse lanterne nelle ore serali.

Photo © simone bossi
Photo © simone bossi
Photo © simone bossi
Photo © simone bossi
Photo © simone bossi
Photo © simone bossi
Photo © simone bossi
Photo © simone bossi
Photo © simone bossi
Photo © simone bossi
Photo © simone bossi
Photo © simone bossi
Photo © simone bossi
Photo © simone bossi
Photo © simone bossi
Drawing © duearchitetti
Drawing © duearchitetti
Year
2016

Other Projects by duearchitetti 

la casa di Andrea
Italy
casa CS
Italy
Moroni Gomma
Milano , Italy