Neubau Gascade-Zentrale in Kassel
Städtebau
Der Neubau für die GASCADE Zentrale in Kassel wird durch zwei kompakte Baukörper mit einem gemeinsamen Zentrum formuliert. Durch den Versatz zwischen beiden Baukörpern entsteht vor dem Haupteingang ein repräsentativer Vorplatz entlang der Stadtachse an der „Joseph Beuys Straße“.
Zudem korrespondiert der am Vorplatz liegende Baukörper mit der Fluchtlinie des Hauptbaukörpers des Fraunhofer Institutes, bzw. dessen optionaler Erweiterung.
Hierdurch entsteht eine logische und selbstverständliche Weiterführung der bestehenden städtebaulichen Situation. Der Vorplatz des GASCADE Neubaus hat einerseits seine Hauptausrichtung zur Joseph Beuys Straße, andrerseits bildet er ein räumliches Gelenk hin zur Clara-Immerwahr-Straße.
In diesem Gelenkpunkt entwickelt auch der GASCADE Neubau mit seinen fünf Geschossen einen baulichen Hochpunkt. Der davon westlich liegende Bauteil staffelt sich, wie der optionale 2. BA, um ein Geschoss ab. Die erdgeschossige Sockelzone fasst die Innenhöfe zu einem geschützten Bereich, schließt durch ihre klare Kante stadträumlich zum Straßenraum ab.
Ab dem ersten Obergeschoss entsteht eine sich öffnende, U-förmige Struktur. Hierdurch entstehen spannende Blickbeziehungen der einzelnen Nutzungen mit dem umgebenden Stadt- und Landschaftsraum.
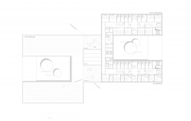
Den westlichen Abschluss bildet das Systemparkhaus mit seiner begrünten Fassade.
Optionale bauliche Erweiterung
Für die optionale Erweiterung wird ein viergeschossiger Baukörper im nördlichen Grundstücksbereich vorgeschlagen. Dieser entwickelt sich aus der Struktur der Neubebauung und kann sowohl intern genutzt werden als auch fremdvermietet werden. Insgesamt wird eine BGF von ca. 2.500 qm erreicht.
Parken
Für den ruhenden Verkehr wird ein Systemparkhaus im westlichen Grundstücksbereich vorgeschlagen. Angedacht ist, dass über die Fassade ein Stahlnetz gespannt wird, welches begrünt wird und dem dadurch entstehenden Freiraum Grünstrukturen widmet. Im Parkhaus befinden sich 202 PKW Stellplätze. Auf dem Vorplatz sind weitere 15 Besucherstellplätze dargestellt. Hierdurch ergibt sich eine Gesamtzahl von 217 Stellplätzen. Bei Bedarf könnte auch auf eine Parkebene verzichtet werden, so dass 50 Stellplätze auf der westlichen Freifläche neben dem Parkhaus nachgewiesen werden könnten.
Je nach Bedarf können alle Stellplätze mit E-Ladesäulen versehen werden. Im Parkhaus sind ca. 60 abschließbare Fahrrad- und 5 Motorradstellplätze vorgeschlagen. Weitere 70 Fahrrad- und 10 Motorradstellplätze befinden sich im nördlichen Bereich des Parkhauses. Bei Bedarf können diese ebenfalls überdacht, bzw. eingehaust werden.
Freiräume, Plätze und Terrassen
Im nördlichen Bereich befindet sich entlang der Tannen- und Schillerstraße ein bestehender Grünzug. Auch im nördlichen Bereich des Fraunhofer Institutes ist eine entsprechende Neuanpflanzung geplant. Für den Bereich des GASCADE Grundstückes wird auch hier dieser nördliche Bereich durch heimische Baumpflanzungen ergänzt, so dass im Norden ein plateaufassender Grünzug entsteht.
Entlang der Joseph Beuys Str. ist vor dem Haupteingang des GASCADE Neubaus ein repräsentativer Vorplatz mit Besucher- und Kurzparkstellplätzen geplant. Als Material sind großformatige Betonwerksteinplatten vorgesehen.
Zwischen dem übergeordneten Grünzug und dem Neubau entsteht eine abwechslungsreiche Terrassenlandschaft mit West, bzw. Herkulesblick. Neben einem intarsienartigen Seerosenbecken und Bambushainen befinden sich auf diesem Terrassenholzdeck der Außenbereich der Kantine sowie verschiedene Outdoor-Besprechungsmöglichkeiten und Verweilzonen. Etwas abgerückt davon werden zeltdachartig überdachte Ruheoasen im Grünen vorgeschlagen. Für die Pausen werden im westlichen Grundstücksbereich Sportflächen vorgeschlagen.
Erschließung, innere Abläufe und Atmosphäre
Über dem repräsentativen Vorplatz gelangt man in die galerieartige Eingangshalle, die mit ihren flexibel nutzbaren Besprechungsbereichen das kommunikative Herz des GASCADE Neubaus bildet. Hinter dem Foyer befindet sich die Eingangshalle, in der auch der Ausstellungsbereich für übergroße Modelle vorgeschlagen wird.
In direkter Nachbarschaft befindet sich hier das Kasino in zentraler Lage. Dieses kann mit dem Konferenz- / Schulungsbereich durch eine flexible Trennwand zusammengeschaltet werden. Beide Bereiche öffnen sich hin zur begrünten Terrasse, bzw. der Besprechungsraum auch multifunktional zum Foyer.
Hierdurch entsteht ein attraktiver Raum, der für verschiedene größere GASCADE Veranstaltungen flexibel genutzt werden kann.
Das übersichtliche Erdgeschoß ist mit seinen beiden Nebeneingängen so geplant, das eine Fremdnutzung problemlos zu realisieren ist. Über zwei repräsentative Treppenhäuser mit angegliederten Aufzügen werden die beiden Baukörper zentral erschlossen. Dabei ist auch ein Lastenaufzug vorgesehen, der alle Geschoße verbindet.
Die Idee des ”great place to work” für den Neubau der GASCADE Zentrale beginnt in diesem galerieartigen, zentralen und kommunikativen Herz des Gebäudes. Bevor man die einzelnen Abteilungen erreicht, gelangt man hier zu den Besprechungszonen, Teeküchen und kommunikativen Meetingpoints außerhalb der Bürofläche, mit diversen Nutzungsoptionen für z.B. Tischfußballspiele, Billardtische, Sitzecken usw.
Über diesen zentralen Raum werden die einzelnen modifizierten Kombibüros autark und auf kurzem Weg erschlossen. Hierdurch wird der Durchgangsverkehr vermieden.
Diese einzelnen Einheiten gestalten sich flexibel, klar strukturiert und
ermöglichen ein störungsfreies Arbeiten sowie eine einfache Orientierung. Die Kernzone wird zu einem wesentlichen Bestandteil für spontane Kommunikation und Austausch genutzt. Über die Möblierung, Teeküchen und die internen Meetingpoints sowie Besprechungsbereiche erhalten diese Zonen Tageslicht und Außenraumbezüge. Durch das vorgeschlagene Bürokonzept lassen sich unterschiedliche, flexible Arbeitsstile ermöglichen. Hierzu gehört sowohl die konzentrierte Einzelarbeit als auch der gemeinsame Austausch in den kommunikativen Bereichen.
Insgesamt spiegelt das Innenraumkonzept eine offene und kommunikative
Unternehmenskultur wider, die durch flexible Raumstrukturen und das Arbeiten im Team geprägt ist.
The ”great place to work” ist ein Ort mit differenzierten Eigenschaften und Qualitäten.
Ein Ort, an dem sich Mitarbeiter wohl fühlen und die Wertschätzung des Unternehmens erleben.
Und ein Ort, an dem sich die Mitarbeiter dem Unternehmen verbunden fühlten und gerne für das Unternehmen arbeiten.
Diese Philosophie prägt die Gestaltung des Gebäudes angefangen von den Freiflächen, über den kommunikativen zentralen Bereichen bis hin zu den einzelnen Büroeinheiten.
Konstruktion, Materialität und architektonische Gestaltung
Das Konstruktionskonzept des Gebäudes basiert auf einem Konstruktionsraster von 5,00 m, 7,50 m und 10,00 m.
Dementsprechend wird dem Entwurf ein Ausbauraster von 1,25 m zugrunde gelegt, dieses ermöglicht flexible Raumaufteilungen sowie eine Fassadengestaltung, die den Tageslichtanforderungen in den unterschiedlichen Funktionsbereichen entspricht.
Die Geschossdecken sollen in den Obergeschossen als unterzugfreie, punkt- und liniengehaltene STB-Flachdecken hergestellt werden. Die Aussteifung der Gebäude erfolgt durch die Geschossdecken über Wandscheiben und die Treppenhaus- bzw. Sanitärkerne. Die wartungsarme und robuste Fassade ist mit vertikalen Fensterelementen gegliedert. Die Fassadenbekleidung ist als silberfarbene, feingliedrige Metallfassade geplant. Für den Sockelbereich wird als Material eine Vorsatzschale aus dunkelgrau lasierten Sichtbeton vorgeschlagen. Vor den Fenstern ist eine außenliegende Sonnenschutzlamelle angeordnet, welche sowohl als Sicht- und Sonnenschutz genutzt werden kann. Alle Fenster sind zu Reinigungs- und Lüftungszwecken zu öffnen.
Bodenverhältnisse und Gründung
Eine wesentliche Problematik des Grundstücks ist der gestörte, bzw. aufgefüllte Baugrund (in Teilbereichen bis zu 15 m) westlich und in Teilbereichen des nördlichen Grundstückes. Deshalb wurde bei der Positionierung aller Baukörper im Entwurf darauf geachtet, dass diese nicht in Bereichen liegen, in denen größere Mengen an Boden ausgetauscht werden müssen, um eine wirtschaftliche Gründung der Gebäude zu gewährleisten.
Bauplanungs- und Bauordnungsrecht
Der Entwurf beinhaltet alle wesentlichen Gesichtspunkte der Bauordnung von Hessen. Die Abstandsflächen sind entsprechend berücksichtigt. Ebenfalls entsprechen Fluchtwege und Anzahl notwendiger Treppenhäuser dem Bauordnungsrecht. Dem Brandschutzkonzept liegt eine Unterteilung in entsprechende Brandabschnitte und Nutzungseinheiten zugrunde. Die Rettungswegeführung ist nach dem Prinzip zweier unabhängiger baulicher Rettungswege geplant. Die Anordnung der Treppenräume ermöglicht eine flexible Grundrissgestaltung bei sich ändernden Nutzeranforderungen. Die DIN 18040-1 für barrierefreies Bauen in öffentlich zugängliche „Gebäude“ findet ebenfalls Anwendung im vorliegenden Entwurf.
Nachhaltigkeit und Wirtschaftlichkeit
Das Ziel des Energiekonzeptes besteht darin, eine weitgehende CO2- Neutralität mit angemessenem thermische Nutzerkomfort zu verbinden, die nachhaltige und wirtschaftliche Gesichtspunkte verknüpfen. Zur Wärmeversorgung wird die Nutzung von Fernwärme vorgeschlagen. Die Fernwärme der Kasseler Stadtwerke weist schon heute einen vergleichsweise geringen CO2- footprint auf, der perspektivisch noch weiter reduziert wird. Ergänzend dazu werden die im Gebäude vorhandenen Möglichkeiten der regenerativen Energieerzeugung genutzt. Auf den Dächern werden kombinierte Solarkollektoren (PVT) installiert, die sowohl Strom als auch Wärme generieren. Der solargewonnene Strom wird zum Eigenverbrauch in das hausinterne Verteilernetz eingespeist, ca. 25% des Stromverbrauches im Gebäude können hierüber gedeckt werden. Die solar gewonnene Wärme wird im Winter und in der Übergangszeit zur Unterstützung der Raumheizung genutzt. Im Sommer wird Wärme als Antriebsenergie zur Kälteerzeugung genutzt, indem sorptionsgestützte Klimaanlagen (DEC Anlagen) zur Luftaufbereitung / Luftkühlung (adiabate Kühlung) vorgesehen werden. Hierbei können ca. 70% des Wärmebedarfes aus solarer Energie genutzt werden, ergänzend dazu wird die Fernwärme genutzt. Für die thermische Konditionierung der Büroflächen werden kombinierte Flächenheiz- und Kühlsysteme (z.B. Heiz- / Kühlsegel) vorgeschlagen, da deren Systemtemperaturen für die Nutzung regenerativer Energien besonders geeignet sind.
Alle Technikschächte und -trassen sind zentral in durchgängigen Versorgungsschächten angeordnet. Zentrale Technikflächen befinden sich im UG.
Weitere Punkte, die sich bei dem vorgeschlagenen Gebäudekonzept positiv auf Energieeffizienz und Nachhaltigkeit auswirken:
• ¬kompakte Bauweise und eine wirtschaftliche Konstruktion
• Verwendung recyclefähiger Baustoffe
• sehr gut gedämmte Gebäudehülle
• robuste Fassadenoberflächen
• gute Tagesbelichtung
• gute Fensterlüftung
• optional Nachtauskühlung
• optimierter / reduzierter Glasflächenanteil (kleiner 40%)
• optimierter sommerlicher Wärmeschutz
• Einsatz effizienter Anlagenkomponenten mit Wärmerückgewinnung
• Einsatz von Photovoltaik, Solarthermie
• Wartungsfreundlichkeit durch klare Schacht- / Trassenführung
Durch den vorgeschlagenen Gebäudebetrieb und die Energieeffizienz ist beabsichtigt, dass ein optimales Kosten-Nutzen-Verhältnis hinsichtlich Wirtschaftlichkeit des Projektes im Bau sowie im späteren Betrieb angestrebt wird.
Die kompakte, gut gedämmte und klare Struktur sowie Konstruktion des Gebäudes mit seinen robusten Oberflächen im Zusammenhang mit dem effizienten Energiekonzept verspricht eine sehr wirtschaftliche Herstellung und geringe Kosten für den Betrieb des Gebäudes.








