Umbau und Umnutzung Kasernenstrasse
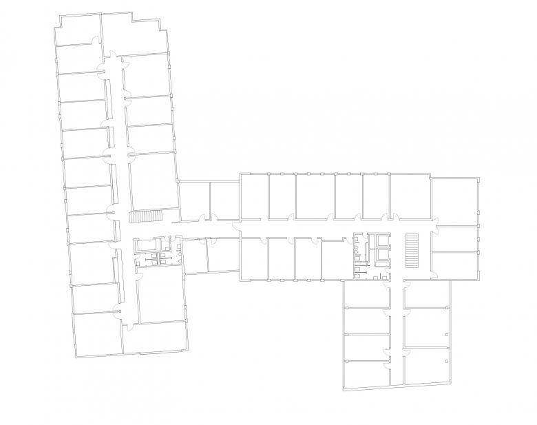
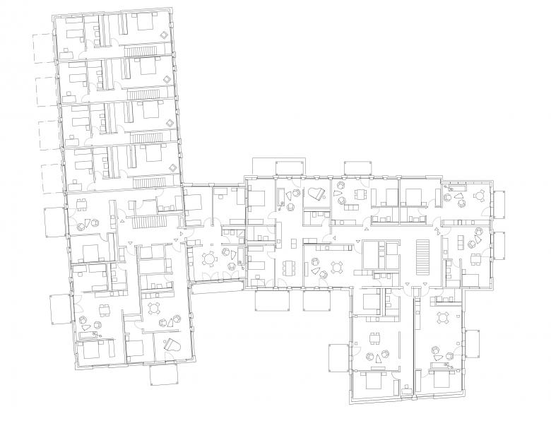
Das Verwaltungsgebäude an der Kasernenstrasse 19/21 entstand in den Jahren 1966/67. Geplant ist die Transformation zu einem Wohngebäude. Für die Umnutzung wird das Gebäude bis auf die Rohbaustruktur zurückgebaut.
Innovative, massgeschneiderte Wohnungsgrundrisse ermöglichen die effiziente Umnutzung unter Erhalt der Bestandesstruktur. Der Wohnungsmix beinhaltet zukünftig 89 Wohnungen vom 1 ½-Zimmerstudio bis hin zur 4 ½-Zimmerwohnung. Sieben Ateliers im Erdgeschoss ergänzen die Wohnnutzung. Rund 85% der Wohnungen sind eingeschossig, 15% der Wohnungen werden zweigeschossig als Townhouses und Duplex konzipiert. Durch neue, vorgelagerte Balkone erhalten die Wohnungen private Aussenräume.
Der durchdachte Umgang mit dem baulichen Bestand ist ein wichtiger Teil nachhaltiger Architekturlösungen. Mit der Adaption und Transformation des bestehenden Gebäudes kann ein relevanter Beitrag zum Klimaschutz geleistet werden.
- Any
- 2026
- Client
- MEG Kasernenstrasse 19/21 Bern
- Equip
- Landschaftsarchitektur: grünwerk1 landschaftsarchitekten ag Olten / Bauingenieur:in: Nydegger + Finger AG Bern / Elektroplanung: Brücker Ingenieure AG Bern / HLKS-Planung: Ingenieurbüro IEM AG Thun / Bauphysik: Grolimund + Partner AG Bern / Brandschutz: SafeT Swiss AG Bern / Umweltingenieur: Geotechnisches Institut AG Bern
- Studienauftrag
- 2021







